Search from thousands of Florida, Miami-Dade & other Engineering Plans. Search all at once, save, share, & monitor listings, all for free.
Sign Up - Look inside Approval content with our DeepSearch reports -
Learn More
Model:
UMSD STK IZ3 16080
Database:
Florida Product Approval
Description:
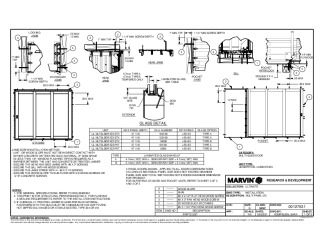
Ultimate MultiSlide Door Stacked IZ3 16080 407-H-1134
Subcategory:
Sliding Exterior Door Assemblies
Validator:
Window and Door Manufacturers Association
Official Site Status:
Approved
Compliance Method:
Certification Mark or Listing
Entity:
Window and Door Manufacturer Association
Submission Date:
November 12, 2025
Validation Date:
November 12, 2025
Design Pressures:
-65psf / +55psf
Possible CSI Codes:
CSI Code: 08 16 73 - Sliding Composite Doors
CSI Code: 08 17 00 - Integrated Door Opening Assemblies
CSI Code: 08 13 73 - Sliding Metal Doors
CSI Code: 08 17 43 - Integrated Composite Door Opening Assemblies
CSI Code: 08 14 73 - Sliding Wood Doors
Other:
Tested size: 4591mm x 2451mm (180 3/4" x 96 1/2"), Max. panel width: 1195 x 2350mm (47 1/16" x 92 1/2"). Glass makeup:23.1mm(.941") IG, 4.7mmT (.185")/9.8mm (.386")/8.6mm (.339")lami, comprised of 3.1mm (.122")/ 2.3mm (.095") SGP, 3.1mm (.122")/ 4.7mm T (.185") Glass complies with ASTM E1300
Notes:
Date Submitted: November 12, 2025Date Validated: November 12, 2025Entity: Window and Door Manufacturer AssociationCompliance Method: Certification Mark or ListingOther: Tested size: 4591mm x 2451mm (180 3/4" x 96 1/2"), Max. panel width: 1195 x 2350mm (47 1/16" x 92 1/2"). Glass makeup:23.1mm(.941") IG, 4.7mmT (.185")/9.8mm (.386")/8.6mm (.339")lami, comprised of 3.1mm (.122")/ 2.3mm (.095") SGP, 3.1mm (.122")/ 4.7mm T (.185") Glass complies with ASTM E1300Official Site Status: ApprovedSubcategory: Sliding Exterior Door Assemblies
Search the National Fenestration Rating Council (NFRC) for Energy Efficiency information
Change Log effective March 1st 2023
Approval & Installation Documents
PR CERTIFICATE FL37823 R2 C CAC UMSDSTK IZ3 16080 CCL 1134.07.08.09
View
Download
PR INSTL DOCS FL37823 R2 II 127531
View
Download
Please log in & make sure your email is verified before viewing & downloading documents.
Thanks! You can now access your file with the button below.
You may also access all other files without any more popups.
Access File
A free account unlocks:
Access additional search features
Save & share searches
Search all databases at the same time
Monitor new listings
Track listing updates
Access download history
Create projects & organize approvals
Stay up to date with new features & industry news
A free account unlocks:
Save & share searches
Access additional search features
Search all databases at the same time
Monitor new listings Learn More
Track listing updates Learn More
Access download history
Create projects & organize approvals
Stay up to date with new features & industry news
Add Listing to Collection(s):
Added to favorites
Please create an account to use this feature