FL31372
Most Recent Revision
FL31372-R14
Revision Folder
Manufacturer
Report Status
Approved
Code
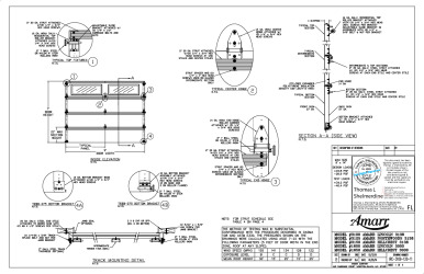
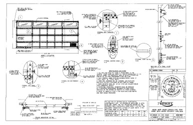
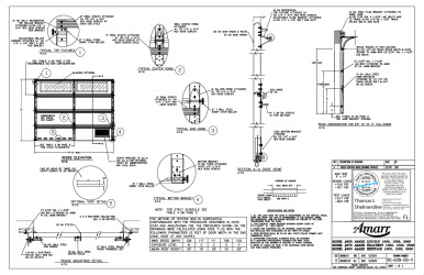
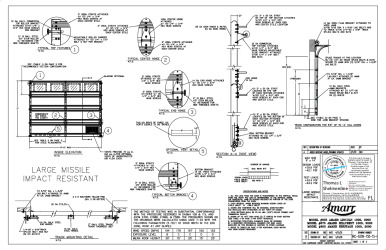
2023 Florida Building Code
Validator
Steven M. Urich, PE
Approvals in this folder:
Revision History
FL31372-R13
Revision Folder
FL31372-R12
Revision Folder
FL31372-R11
Revision Folder
FL31372-R10
Revision Folder
FL31372-R9
Revision Folder
FL31372-R8
Revision Folder
FL31372-R7
Revision Folder
FL31372-R6
Revision Folder
FL31372-R5
Revision Folder
FL31372-R4
Revision Folder
FL31372-R2
Revision Folder
FL31372-R1
Revision Folder
FL31372-R0
Revision Folder
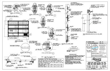
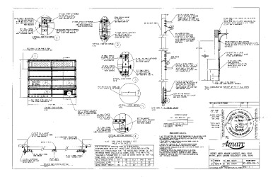
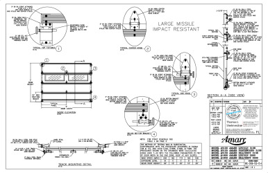
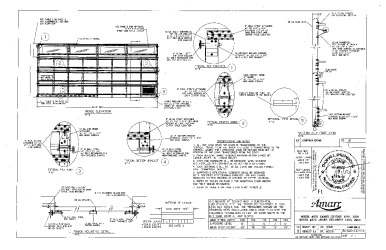
Manufacturer Info
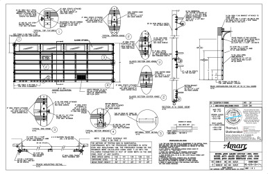
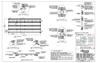
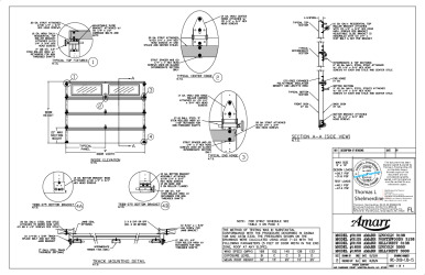
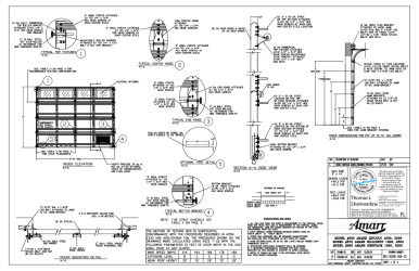
Amarr Garage Doors/Entrematic, established in 1951, is a leading manufacturer of premium garage doors and access systems for residential, commercial, industrial, and agricultural applications. Headquartered in Winston-Salem, North Carolina, the company is renowned for its innovative designs, superior quality, and exceptional customer service, offering a wide range of garage door styles, materials, and automation options to suit diverse requirements and preferences. View all listings
* This manufacturer has not claimed their profile. Any logo or description displayed above has been generated by AI.
Folder QR Code
Shopping Cart
