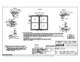
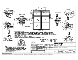
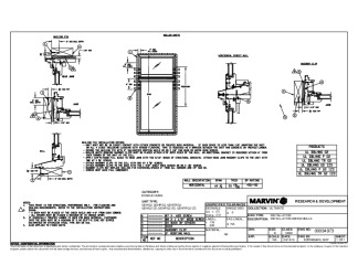
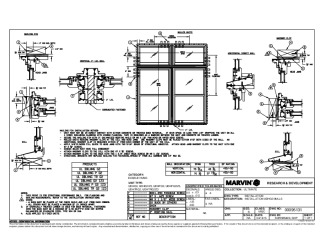
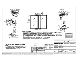
FL37207
Most Recent Revision
FL37207-R1
Revision Folder
Manufacturer
Report Status
Approved
Code
2023 Florida Building Code
Validator
Window and Door Manufacturers Association
Approvals in this folder:
Revision History
FL37207-R0
Revision Folder
Manufacturer Info
Marvin is the industry-leading manufacturer of made-to-order wood and clad-wood windows and doors. Family-owned since 1912, Marvin is headquartered in Warroad, Minnesota, and employs over 5,000 people in 10 facilities throughout North America. Marvin products are known for their exceptional quality, durability, and energy efficiency, and are available through a network of independent dealers across the United States and Canada. View all listings
* This manufacturer has not claimed their profile. Any logo or description displayed above has been generated by AI.
Folder QR Code
Shopping Cart
