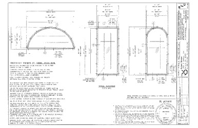
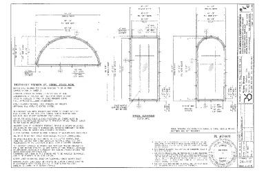
FL37878
Most Recent Revision
FL37878-R2
Revision Folder
Manufacturer
Report Status
Approved
Code
2023 Florida Building Code
Validator
Abel Carrasco, PE
Approvals in this folder:
Revision History
FL37878-R1
Revision Folder
FL37878-R0
Revision Folder
Manufacturer Info
Riviera Bronze is a renowned manufacturer of premium architectural hardware, specializing in bronze-crafted products. Committed to excellence, they produce high-quality door and window hardware, door pulls, cabinet pulls, and other architectural elements, all made with unparalleled craftsmanship and artistry. Their products are chosen for their durability, aesthetic appeal and timeless elegance, enhancing the architectural integrity of numerous prestigious buildings worldwide. View all listings
* This manufacturer has not claimed their profile. Any logo or description displayed above has been generated by AI.
Folder QR Code
Shopping Cart
