FL10188.2-R9

Report Status
Approved
Code Version
2017 Florida Building Code
Application Type
Revision
Folio:
Model:

ICAP IZ3 7355

Manufacturer:
Database:
Florida Product Approval
Source Link:
Description:

Integrity IMPACT Casement Picture, Transom and Stationary - IZ3, Fiberglass Clad Wood Fixed Window with Impact Glazing, 407-H-900.22 & 407-H-900.30.

Listing Details
Category:
Windows Mullions and Skylights
Subcategory:
Fixed
Evaluator:
  -  
Validator:
Window and Door Manufacturers Association
Official Site Status:
Approved
Compliance Method:
Certification Mark or Listing
Approval Method:
Method 1 Option A
Entity:
Window and Door Manufacturer Association
Specifications
Submission Date:
November 26, 2018
Validation Date:
November 30, 2018
Expiration Date:
12/31/2021
HVHZ Approved:
No
Impact Resistant:
Yes [FL]
Design Pressures:
-65psf / +55psf
Possible CSI Codes:
CSI Code: 08 01 52.61 - Wood Window Repairs
CSI Code: 08 01 52.71 - Wood Window Rehabilitation
CSI Code: 08 52 00 - Wood Windows
CSI Code: 08 52 69 - Wood Storm Windows
CSI Code: 08 61 16 - Wood Roof Windows
Other:
Maximum size: 72" x 55". Wind zone 3 missile level D. All Glass Conforms to ASTM E 1300. Tested glass make-up (3.9mm T/7.0 mm airspace/ 6.9 mm SGP lami)
Notes:


Date Submitted: November 26, 2018

Date Validated: November 30, 2018

Entity: Window and Door Manufacturer Association

Compliance Method: Certification Mark or Listing

Other: Maximum size: 72" x 55". Wind zone 3 missile level D. All Glass Conforms to ASTM E 1300. Tested glass make-up (3.9mm T/7.0 mm airspace/ 6.9 mm SGP lami)

Official Site Status: Approved

Subcategory: Fixed
Contact Information
Representative:
Cheryl Hill
Address:
Hwy 11 West,
Warroad, Minnesota 56763 USA
Search the National Fenestration Rating Council
(NFRC) for Energy Efficiency information

Read, ask experts, & comment on this topic. All for free.

Latest Posts From This Product Category

Ask The Circle
Listing Changes
Last Synced: 10/01/2025
Change Log effective March 1st 2023
Please sign in or create an account to view listing changes
Approval & Installation Documents
PR CERTIFICATE FL10188 R9 C CAC 407-H-900.30 INTEGRITY WOOD ULTREX IMPACT CASEMENT PICTURE -IZ3 7355 ICAP
PR CERTIFICATE FL10188 R9 C CAC 407-H-900.30 INTEGRITY WOOD ULTREX IMPACT CASEMENT PICTURE -IZ3 7355 ICAP
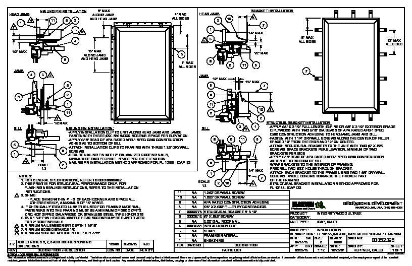
PR INSTL DOCS FL10188 R9 II 00052395 7.2
PR INSTL DOCS FL10188 R9 II 00052395 7.2
QR Code To This Listing
FL10188.2-R9 Listing QR Code
Shopping Cart