FL10188.9-R15
Report Status
Approved
Code Version
2023 Florida Building Code
Application Type
Revision
Folio:
Model:
ELDG IZ3 9672
Manufacturer:
Database:
Florida Product Approval
Source Link:
Description:
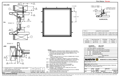
Elevate Direct Glaze - IZ3, Fiberglass Clad Wood Fixed Window with Impact Glazing, 407-H-876
Listing Details
Specifications
Submission Date:
December 8, 2025
Validation Date:
December 16, 2025
Design Pressures:
-65psf / +55psf
Possible CSI Codes:
CSI Code: 08 81 23 - Exterior Glass Glazing
CSI Code: 08 81 13 - Decorative Glass Glazing
CSI Code: 08 52 00 - Wood Windows
CSI Code: 08 81 00 - Glass Glazing
CSI Code: 08 61 16 - Wood Roof Windows
Other:
Maximum size: 95" x 71.5". Wind zone 3 missile level D. All Glass Conforms to ASTM E 1300. Tested glass make-up (5.7mm T/9.8 mm airspace/ 10.1 mm PVB lami)
Notes:
Date Submitted: December 8, 2025
Date Validated: December 16, 2025
Entity: Window and Door Manufacturer Association
Compliance Method: Certification Mark or Listing
Other: Maximum size: 95" x 71.5". Wind zone 3 missile level D. All Glass Conforms to ASTM E 1300. Tested glass make-up (5.7mm T/9.8 mm airspace/ 10.1 mm PVB lami)
Official Site Status: Approved
Subcategory: Fixed
Contact Information
Representative:
Cheryl Hill
Address:
Hwy 11 West,
Warroad, Minnesota 56763 USA
Warroad, Minnesota 56763 USA
Phone:
Website:
Listing Changes
Last Synced: 04/01/2026
Change Log effective March 1st 2023
Please sign in or create an account to view listing changes
Approval & Installation Documents

PR CERTIFICATE FL10188 R15 C CAC CCL 876.92.93.94

PR INSTL DOCS FL10188 R15 II INSTALL 876.89 - .94 (00051692)

PR INSTL DOCS FL10188 R15 II INSTALL 876.89 - .94 (00058956)

PR INSTL DOCS FL10188 R15 II INSTALL 876.89 - .94 (00120778)

PR INSTL DOCS FL10188 R15 II INSTALL 879.89 - .94 (00120773)
QR Code To This Listing