Search from thousands of Florida, Miami-Dade & other Engineering Plans. Search all at once, save, share, & monitor listings, all for free.
Sign Up - Look inside Approval content with our DeepSearch reports -
Learn More
Model:
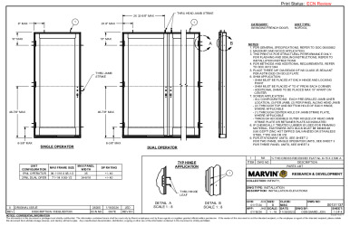
ELOFDG3/NOFDG3 3080 X
Database:
Florida Product Approval
Description:
Elevate or Infinity Outswing French Door Generation 3 Fiberglass clad wood hinged glass door 407-H-1172.00 and 1172.01
Subcategory:
Swinging Exterior Door Assemblies
Validator:
Window and Door Manufacturers Association
Official Site Status:
Approved
Compliance Method:
Certification Mark or Listing
Entity:
Window and Door Manufacturer Association
Submission Date:
June 18, 2024
Validation Date:
June 27, 2024
Design Pressures:
-40psf / +40psf
Possible CSI Codes:
CSI Code: 08 32 19 - Sliding Wood-Framed Glass Doors
CSI Code: 08 32 00 - Sliding Glass Doors
CSI Code: 08 14 00 - Wood Doors
CSI Code: 08 16 13 - Fiberglass Doors
CSI Code: 08 14 23 - Clad Wood Doors
Other:
Maximum size: 36.75" x 95.5". Configurations: X. All door glass conforms to ASTM E1300 and is tempered.
Notes:
Date Submitted: June 18, 2024Date Validated: June 27, 2024Entity: Window and Door Manufacturer AssociationCompliance Method: Certification Mark or ListingOther: Maximum size: 36.75" x 95.5". Configurations: X. All door glass conforms to ASTM E1300 and is tempered.Official Site Status: ApprovedSubcategory: Swinging Exterior Door Assemblies
Search the National Fenestration Rating Council (NFRC) for Energy Efficiency information
Change Log effective March 1st 2023
Approval & Installation Documents
PR INSTL DOCS FL10196 R10 II 00131137
View
Download
PR INSTL DOCS FL10196 R10 II 00131244
View
Download
PR INSTL DOCS FL10196 R10 II 00131455
View
Download
PR INSTL DOCS FL10196 R10 II 00131456
View
Download
PR CERTIFICATE FL10196 R10 C CAC MARVIN ELEVATE AND INFINITY SIDE HINGED DOOR X 36.7IN X 95.5 IN
View
Download
Please log in & make sure your email is verified before viewing & downloading documents.
Thanks! You can now access your file with the button below.
You may also access all other files without any more popups.
Access File
A free account unlocks:
Access additional search features
Save & share searches
Search all databases at the same time
Monitor new listings
Track listing updates
Access download history
Create projects & organize approvals
Stay up to date with new features & industry news
A free account unlocks:
Save & share searches
Access additional search features
Search all databases at the same time
Monitor new listings Learn More
Track listing updates Learn More
Access download history
Create projects & organize approvals
Stay up to date with new features & industry news
Add Listing to Collection(s):
Added to favorites
Please create an account to use this feature