FL10199.1-R6

Report Status
Approved
Code Version
2017 Florida Building Code
Application Type
Affirmation
Folio:
Model:

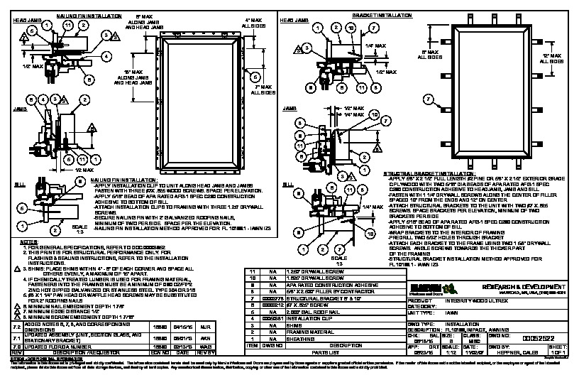
IAWN IZ3 3747

Manufacturer:
Database:
Florida Product Approval
Source Link:
Description:

Integrity IMPACT Awning - IZ3, Fiberglass Clad Wood Awning Window with Impact Glazing, 407-H-899.19 & 407-H-899.30.

Listing Details
Category:
Windows Mullions and Skylights
Subcategory:
Awning
Evaluator:
  -  
Validator:
Window and Door Manufacturers Association
Official Site Status:
Approved
Compliance Method:
Certification Mark or Listing
Approval Method:
Method 1 Option A
Entity:
Window and Door Manufacturer Association
Specifications
Submission Date:
November 2, 2017
Validation Date:
November 2, 2017
Expiration Date:
12/31/2021
HVHZ Approved:
No
Impact Resistant:
Yes [FL]
Design Pressures:
-65psf / +55psf
Possible CSI Codes:
CSI Code: 08 52 69 - Wood Storm Windows
CSI Code: 08 61 16 - Wood Roof Windows
CSI Code: 08 52 00 - Wood Windows
CSI Code: 08 54 69 - Fiberglass Storm Windows
CSI Code: 08 01 52.61 - Wood Window Repairs
Other:
Maximun size: 37" x 47". Wind zone 3 missile level D. All glass conforms to ASTM E1300. Tested glass make-up is (3.9T/ 7.0 air space/ 6.9 SGP lami)
Notes:


Date Submitted: November 2, 2017

Date Validated: November 2, 2017

Entity: Window and Door Manufacturer Association

Compliance Method: Certification Mark or Listing

Other: Maximun size: 37" x 47". Wind zone 3 missile level D. All glass conforms to ASTM E1300. Tested glass make-up is (3.9T/ 7.0 air space/ 6.9 SGP lami)

Official Site Status: Approved

Subcategory: Awning
Contact Information
Representative:
Cheryl Hill
Address:
Hwy 11 West,
Warroad, Minnesota 56763 USA
Search the National Fenestration Rating Council
(NFRC) for Energy Efficiency information

Read, ask experts, & comment on this topic. All for free.

Latest Posts From This Product Category

Ask The Circle
Listing Changes
Last Synced: 03/03/2026
Change Log effective March 1st 2023
Please sign in or create an account to view listing changes
Approval & Installation Documents
PR CERTIFICATE FL10199 R6 C CAC IAWN IZ3
PR CERTIFICATE FL10199 R6 C CAC IAWN IZ3
PR INSTL DOCS FL10199 R6 II 00052522 7.2
PR INSTL DOCS FL10199 R6 II 00052522 7.2
QR Code To This Listing
FL10199.1-R6 Listing QR Code
Shopping Cart