FL10737.28-R15
Report Status
Approved
Code Version
2023 Florida Building Code
Application Type
Affirmation
Folio:
Model:
4600/4650/6600/8300/8500/8650/5150/5200/TM515/TM525
Manufacturer:
Database:
Florida Product Approval
Source Link:
Description:
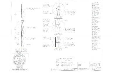
18'2" Max width. 24" Max height. Glazing available in top or intermediate section.
Listing Details
Category:
Doors
Subcategory:
Sectional Exterior Door Assemblies
Evaluator:
John Christian Voelkel - PE-82229
Validator:
Jeffrey P. Arneson, P.E.
Official Site Status:
Approved
Compliance Method:
Evaluation Report from a Florida Registered Architect or a Licensed Florida Professional Engineer
Entity:
Specifications
Submission Date:
October 16, 2023
Validation Date:
October 16, 2023
Design Pressures:
-33.5psf / +30psf
Possible CSI Codes:
CSI Code: 08 36 13 - Sectional Doors
CSI Code: 08 13 16.13 - Aluminum Terrace Doors
CSI Code: 08 14 33.13 - Wood Terrace Doors
CSI Code: 08 36 00 - Panel Doors
CSI Code: 08 42 36 - Balanced Door Entrances
Other:
Glazing is impact-resistant and meets the requirements for the wind-borne debris regions.
Notes:
Date Submitted: October 16, 2023
Date Validated: October 16, 2023
Entity:
Compliance Method: Evaluation Report from a Florida Registered Architect or a Licensed Florida Professional Engineer
Other: Glazing is impact-resistant and meets the requirements for the wind-borne debris regions.
Official Site Status: Approved
Subcategory: Sectional Exterior Door Assemblies
Contact Information
Representative:
Dwayne Kornish
Address:
3395 Addison Drive,
Pensacola, Florida 32514 USA
Pensacola, Florida 32514 USA
Phone:
Listing Changes
Last Synced: 04/01/2026
Change Log effective March 1st 2023
Please sign in or create an account to view listing changes
Approval & Installation Documents

PR INSTL DOCS FL10737 R15 II WD JAMB SUPPLEMENT 363342-RP01 DRAWING - CV

PR INSTL DOCS FL10737 R15 II WD TRACK SUPPLEMENT CHART 307494-RP13 S

PR TECH DOCS FL10737 R15 AE EVALUATION REPORT 8300 - S

PR INSTL DOCS FL10737 R15 II 2254 365141-RD - CV
QR Code To This Listing