FL10737.5-R17
Report Status
Approved
Code Version
2023 Florida Building Code
Application Type
Revision
Folio:
Model:
4600/4650/6600/8300/8500/8650/5150/5200/TM515/TM525
Manufacturer:
Database:
Florida Product Approval
Source Link:
Description:
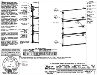
9'2" Max width. 24' Max height. Glazing available in top or intermediate section.
Listing Details
Category:
Doors
Subcategory:
Sectional Exterior Door Assemblies
Evaluator:
John Christian Voelkel - PE-82229
Validator:
Kurt Dietrich PE
Official Site Status:
Approved
Compliance Method:
Evaluation Report from a Florida Registered Architect or a Licensed Florida Professional Engineer
Entity:
Specifications
Submission Date:
October 15, 2025
Validation Date:
October 16, 2025
Design Pressures:
-20.6psf / +19.1psf
Possible CSI Codes:
CSI Code: 08 36 13 - Sectional Doors
CSI Code: 08 14 33.13 - Wood Terrace Doors
CSI Code: 08 13 16.13 - Aluminum Terrace Doors
CSI Code: 08 42 36 - Balanced Door Entrances
CSI Code: 08 36 19 - Multi-Leaf Vertical Lift Doors
Other:
Glazing is not impact resistant and does not meet the requirements for wind-borne debris regions.
Notes:
Date Submitted: October 15, 2025
Date Validated: October 16, 2025
Entity:
Compliance Method: Evaluation Report from a Florida Registered Architect or a Licensed Florida Professional Engineer
Other: Glazing is not impact resistant and does not meet the requirements for wind-borne debris regions.
Official Site Status: Approved
Subcategory: Sectional Exterior Door Assemblies
Contact Information
Representative:
Dwayne Kornish
Address:
3395 Addison Drive,
Pensacola, Florida 32514 USA
Pensacola, Florida 32514 USA
Phone:
Listing Changes
Last Synced: 04/04/2026
Change Log effective March 1st 2023
Please sign in or create an account to view listing changes
Approval & Installation Documents

PR INSTL DOCS FL10737 R17 II 2201 352064-RG - CV

PR INSTL DOCS FL10737 R17 II WD JAMB SUPPLEMENT 363342-RP01 DRAWING - CV

PR INSTL DOCS FL10737 R17 II WD TRACK SUPPLEMENT CHART 307494-RP13 S

PR TECH DOCS FL10737 R17 AE FBC EVALUATION REPORT FL 10737 8300 SS
QR Code To This Listing