Search from thousands of Florida, Miami-Dade & other Engineering Plans. Search all at once, save, share, & monitor listings, all for free.
Sign Up - Look inside Approval content with our DeepSearch reports -
Learn More
Database:
Florida Product Approval
Description:
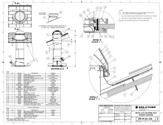
Non-Impact 290 DS (14) Tubular Daylight Device - Non-HVHZ
Category:
Windows Mullions and Skylights
Evaluator:
Robert J. Amoruso, P.E. - PE-49752
Validator:
Steven M. Urich, PE
Official Site Status:
Approved
Compliance Method:
Evaluation Report from a Florida Registered Architect or a Licensed Florida Professional Engineer
Submission Date:
February 7, 2018
Validation Date:
February 7, 2018
Design Pressures:
-70psf / +70psf
Possible CSI Codes:
CSI Code: 08 62 23 - Tubular Skylights
CSI Code: 08 62 00 - Unit Skylights
CSI Code: 08 62 16 - Pyramidal Unit Skylights
CSI Code: 08 63 00 - Metal-Framed Skylights
CSI Code: 08 63 23 - Ridge Metal-Framed Skylights
Notes:
Date Submitted: February 7, 2018Date Validated: February 7, 2018Entity: Compliance Method: Evaluation Report from a Florida Registered Architect or a Licensed Florida Professional EngineerOther: Official Site Status: ApprovedSubcategory: Skylight
Search the National Fenestration Rating Council (NFRC) for Energy Efficiency information
Change Log effective March 1st 2023
Approval & Installation Documents
PR TECH DOCS FL11480 R11 AE PER 2399 REV2 SOLATUBE 160 DS-290 DS TDD SS
View
Download
PR INSTL DOCS FL11480 R11 II MODEL 290 DS TDD - PRODUCT DRAWING PACKAGE
View
Download
Please log in & make sure your email is verified before viewing & downloading documents.
Thanks! You can now access your file with the button below.
You may also access all other files without any more popups.
Access File
A free account unlocks:
Access additional search features
Save & share searches
Search all databases at the same time
Monitor new listings
Track listing updates
Access download history
Create projects & organize approvals
Stay up to date with new features & industry news
A free account unlocks:
Save & share searches
Access additional search features
Search all databases at the same time
Monitor new listings Learn More
Track listing updates Learn More
Access download history
Create projects & organize approvals
Stay up to date with new features & industry news
Add Listing to Collection(s):
Added to favorites
Please create an account to use this feature