FL13278.1-R3

Report Status
Approved
Code Version
2017 Florida Building Code
Application Type
Revision
Folio:
Model:

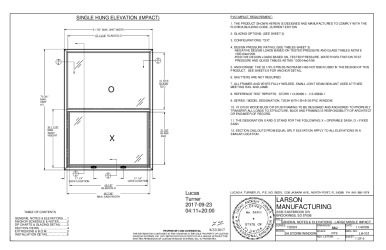
T203H Single Hung

Database:
Florida Product Approval
Source Link:
Description:

Tandem Product: Aluminum Storm Window Attached to PVC Single Hung Window

Listing Details
Category:
Windows Mullions and Skylights
Subcategory:
Single Hung
Evaluator:
Lucas A. Turner - PE-58201
Validator:
Scott Wolters, PE
Official Site Status:
Approved
Compliance Method:
Evaluation Report from a Florida Registered Architect or a Licensed Florida Professional Engineer
Approval Method:
Method 1 Option D
Entity:
 
Specifications
Submission Date:
September 15, 2017
Validation Date:
October 6, 2017
Expiration Date:
12/31/2021
HVHZ Approved:
Yes
Impact Resistant:
Yes [FL]
Design Pressures:
-70psf / +70psf
Possible CSI Codes:
CSI Code: 08 53 69 - Vinyl Storm Windows
CSI Code: 08 51 69 - Metal Storm Windows
CSI Code: 08 46 00 - Window Wall Assemblies
CSI Code: 08 60 00 - Roof Windows and Skylights
CSI Code: 08 52 69 - Wood Storm Windows
Other:
Large Missile Impact Resistant, maximum size 51 7/8" x 70 3/4" unit size. See Evaluation Report LH-101 and Installation Drawing LH-101 for additional details.
Notes:


Date Submitted: September 15, 2017

Date Validated: October 6, 2017

Entity:  

Compliance Method: Evaluation Report from a Florida Registered Architect or a Licensed Florida Professional Engineer

Other: Large Missile Impact Resistant, maximum size 51 7/8" x 70 3/4" unit size. See Evaluation Report LH-101 and Installation Drawing LH-101 for additional details.

Official Site Status: Approved

Subcategory: Single Hung
Contact Information
Representative:
KELLY NORDGAARD
Address:
2333 Eastbrook Drive,
Brookings, South Dakota 57006
Search the National Fenestration Rating Council
(NFRC) for Energy Efficiency information

Read, ask experts, & comment on this topic. All for free.

Latest Posts From This Product Category

Ask The Circle
Listing Changes
Last Synced: 10/02/2025
Change Log effective March 1st 2023
Please sign in or create an account to view listing changes
Approval & Installation Documents
PR INSTL DOCS FL13278 R3 II LH-101
PR INSTL DOCS FL13278 R3 II LH-101
PR TECH DOCS FL13278 R3 AE EVALREPORTLH-101
PR TECH DOCS FL13278 R3 AE EVALREPORTLH-101
QR Code To This Listing
FL13278.1-R3 Listing QR Code
Shopping Cart