FL13521.2-R5
Report Status
Approved
Code Version
2017 Florida Building Code
Application Type
Revision
Folio:
Model:
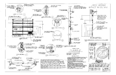
Stratford, Heritage and Oak Summit Models 600, 650 and 950
Manufacturer:
Database:
Florida Product Approval
Source Link:
Description:
Dwg. IRC-6009-150-15-I, Thru 9' wide.
Listing Details
Category:
Doors
Subcategory:
Sectional Exterior Door Assemblies
Evaluator:
Thomas L. Shelmerdine - PE-0048579
Validator:
Steven M. Urich, PE
Official Site Status:
Approved
Compliance Method:
Evaluation Report from a Florida Registered Architect or a Licensed Florida Professional Engineer
Entity:
Specifications
Submission Date:
October 16, 2017
Validation Date:
October 17, 2017
Design Pressures:
-42.1psf / +35.6psf
Possible CSI Codes:
CSI Code: 08 36 13 - Sectional Doors
CSI Code: 08 17 00 - Integrated Door Opening Assemblies
CSI Code: 08 17 23 - Integrated Wood Door Opening Assemblies
CSI Code: 08 14 33.13 - Wood Terrace Doors
CSI Code: 08 14 00 - Wood Doors
Other:
Notes:
Date Submitted: October 16, 2017
Date Validated: October 17, 2017
Entity:
Compliance Method: Evaluation Report from a Florida Registered Architect or a Licensed Florida Professional Engineer
Other:
Official Site Status: Approved
Subcategory: Sectional Exterior Door Assemblies
Contact Information
Representative:
Robert Richardson
Address:
165 Carriage Court,
Winston-Salem, North Caroli 27105 USA
Winston-Salem, North Caroli 27105 USA
Phone:
Website:
Listing Changes
Last Synced: 03/23/2026
Change Log effective March 1st 2023
Please sign in or create an account to view listing changes
Approval & Installation Documents

PR INSTL DOCS FL13521 R5 II RETAIL PRODUCT CROSS REFERENCE CHART

PR INSTL DOCS FL13521 R5 II IRC-6009-150-15-I DRAWING 7-10 FL

PR TECH DOCS FL13521 R5 AE IRC-6009-150-15-I EVALUATION REPORT 7-10 SEALED
QR Code To This Listing