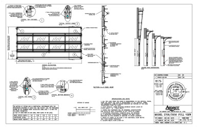
FL14332
Most Recent Revision
FL14332-R5
Revision Folder
Manufacturer
Report Status
Approved
Code
2020 Florida Building Code
Validator
Steven M. Urich, PE
Approvals in this folder:
Revision History
FL14332-R3
Revision Folder
Manufacturer Info
Amarr Garage Doors/Entrematic, established in 1951, is a leading manufacturer of premium garage doors and access systems for residential, commercial, industrial, and agricultural applications. Headquartered in Winston-Salem, North Carolina, the company is renowned for its innovative designs, superior quality, and exceptional customer service, offering a wide range of garage door styles, materials, and automation options to suit diverse requirements and preferences. View all listings
* This manufacturer has not claimed their profile. Any logo or description displayed above has been generated by AI.
Folder QR Code
Shopping Cart
