Search from thousands of Florida, Miami-Dade & other Engineering Plans. Search all at once, save, share, & monitor listings, all for free.
Sign Up - Look inside Approval content with our DeepSearch reports -
Learn More
Model:
5745/5765/7565/7655/515/525
Database:
Florida Product Approval
Description:
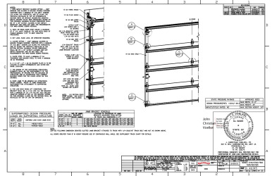
9'2" Max width. 24' Max height. Glazing available in top or intermediate section
Subcategory:
Sectional Exterior Door Assemblies
Evaluator:
John Christian Voelkel - PE-82229
Validator:
Kurt Dietrich PE
Official Site Status:
Approved
Compliance Method:
Evaluation Report from a Florida Registered Architect or a Licensed Florida Professional Engineer
Submission Date:
October 15, 2025
Validation Date:
October 16, 2025
Design Pressures:
-26.3psf / +22.9psf
Possible CSI Codes:
CSI Code: 08 36 13 - Sectional Doors
CSI Code: 08 14 33.13 - Wood Terrace Doors
CSI Code: 08 13 16.13 - Aluminum Terrace Doors
CSI Code: 08 42 36 - Balanced Door Entrances
CSI Code: 08 36 19 - Multi-Leaf Vertical Lift Doors
Other:
Glazing is not impact-resistant and does not meet the requirements for the wind-borne debris regions.
Notes:
Date Submitted: October 15, 2025Date Validated: October 16, 2025Entity: Compliance Method: Evaluation Report from a Florida Registered Architect or a Licensed Florida Professional EngineerOther: Glazing is not impact-resistant and does not meet the requirements for the wind-borne debris regions.Official Site Status: ApprovedSubcategory: Sectional Exterior Door Assemblies
Search the National Fenestration Rating Council (NFRC) for Energy Efficiency information
Change Log effective March 1st 2023
Approval & Installation Documents
PR INSTL DOCS FL16798 R10 II 411059P0 COMM TRACK S
View
Download
PR INSTL DOCS FL16798 R10 II OHD JAMB SUPPLEMENT 411526-RP01 DRAWING - CV
View
Download
PR TECH DOCS FL16798 R10 AE FBC EVALUATION REPORT FL16798 5745 V3 SS
View
Download
PR INSTL DOCS FL16798 R10 II 411315-RE - CV
View
Download
Please log in & make sure your email is verified before viewing & downloading documents.
Thanks! You can now access your file with the button below.
You may also access all other files without any more popups.
Access File
A free account unlocks:
Access additional search features
Save & share searches
Search all databases at the same time
Monitor new listings
Track listing updates
Access download history
Create projects & organize approvals
Stay up to date with new features & industry news
A free account unlocks:
Save & share searches
Access additional search features
Search all databases at the same time
Monitor new listings Learn More
Track listing updates Learn More
Access download history
Create projects & organize approvals
Stay up to date with new features & industry news
Add Listing to Collection(s):
Added to favorites
Please create an account to use this feature