FL16848

Save to Favorites
Most Recent Revision

FL16848-R8

Revision Folder

Report Status
Approved
Code
2023 Florida Building Code
Validator
Gary Pfuehler
Approvals in this folder:

Revision History

FL16848-R7

Revision Folder

Report Status
Approved
Code
2023 Florida Building Code
Validator
Gary Pfuehler
Approvals in this folder:

FL16848-R6

Revision Folder

Report Status
Approved
Code
2023 Florida Building Code
Validator
Gary Pfuehler
Approvals in this folder:

FL16848-R5

Revision Folder

Report Status
Approved
Code
2020 Florida Building Code
Validator
Gary Pfuehler
Approvals in this folder:

FL16848-R4

Revision Folder

Report Status
Approved
Code
2020 Florida Building Code
Validator
Gary Pfuehler
Approvals in this folder:

FL16848-R3

Revision Folder

Report Status
Approved
Code
2017 Florida Building Code
Validator
Gary Pfuehler
Approvals in this folder:
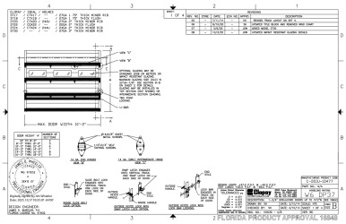
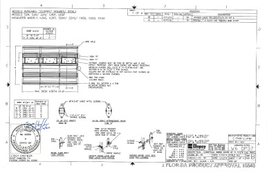
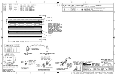
Manufacturer Info
Clopay Building Products Company is a leading manufacturer and distributor of residential and commercial garage doors, rolling steel doors, fire-rated doors, and access control systems. Headquartered in Mason, Ohio, United States, with manufacturing facilities across North America, Clopay offers a wide range of products designed to meet various needs, from residential and commercial applications to industrial and institutional settings. View all listings
* This manufacturer has not claimed their profile. Any logo or description displayed above has been generated by AI.
Folder QR Code
FL16848 Listing QR Code

EngineeringPlans.com provides an independent way to search Florida, Miami Dade Product Approvals, & product evaluations from other listed agencies & is not affiliated with the State of Florida, Miami-Dade County, FloridaBuilding.org, miamidade.gov, Intertek, CALADBS, Dr. J’s Engineering, or any other listed agency in any way. Information provided from this website is obtained from public records and must be verified by the source agency prior to use. EngineeringPlans.com is not responsible for the accuracy or use of any information contained herein.

Information, methodology, logos, photos, & trademarked names on this website may not be used, reproduced, distributed, or modified without the written permission of EngineeringPlans.com or they’re corresponding owners. Any information provided by this site is not binding and shall not be used or taken as fact without the written certification of a licensed Design Professional.

EngineeringPlans.com may contain affiliate links in posts & pages & may receive a small fee from purchases made. There is no cost to you for this service. Reviews & opinions are not affected by this.
EngineeringPlans.com is not an architectural/engineering firm but partners with design professionals to provide compliant content as applicable. Each firm is responsible for their respective contributions.
This site is protected by reCAPTCHA and the Google Privacy Policy and Terms of Service apply.
2026

© EngineeringPlans.com All rights reserved.​

Shopping Cart