FL16894

Save to Favorites
Most Recent Revision

FL16894-R6

Revision Folder

Report Status
Approved
Code
2023 Florida Building Code
Validator
Lucas A. Turner, P.E., MBA
Approvals in this folder:

Revision History

FL16894-R5

Revision Folder

Report Status
Not Approved
Code
2023 Florida Building Code
Validator
Lucas A. Turner, P.E., MBA
Approvals in this folder:

FL16894-R4

Revision Folder

Report Status
Approved
Code
2020 Florida Building Code
Validator
Lucas A. Turner, P.E., MBA
Approvals in this folder:

FL16894-R3

Revision Folder

Report Status
Approved
Code
2017 Florida Building Code
Validator
Lucas A. Turner, P.E., MBA
Approvals in this folder:
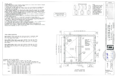
Manufacturer Info
Luxbaum Windows and Doors is a family-owned company that has been crafting high-quality, energy-efficient windows and doors for over 30 years. They specialize in custom-made products, providing homeowners with a wide range of options to suit their needs and style preferences. Their products are known for their superior craftsmanship, durability, and thermal performance, helping homeowners save on energy costs and enhance the comfort and beauty of their homes. With a commitment to innovation and customer satisfaction, Luxbaum is dedicated to delivering exceptional windows and doors that add value and elegance to any property. View all listings
* This manufacturer has not claimed their profile. Any logo or description displayed above has been generated by AI.
Folder QR Code
FL16894 Listing QR Code

EngineeringPlans.com provides an independent way to search Florida, Miami Dade Product Approvals, & product evaluations from other listed agencies & is not affiliated with the State of Florida, Miami-Dade County, FloridaBuilding.org, miamidade.gov, Intertek, CALADBS, Dr. J’s Engineering, or any other listed agency in any way. Information provided from this website is obtained from public records and must be verified by the source agency prior to use. EngineeringPlans.com is not responsible for the accuracy or use of any information contained herein.

Information, methodology, logos, photos, & trademarked names on this website may not be used, reproduced, distributed, or modified without the written permission of EngineeringPlans.com or they’re corresponding owners. Any information provided by this site is not binding and shall not be used or taken as fact without the written certification of a licensed Design Professional.

EngineeringPlans.com may contain affiliate links in posts & pages & may receive a small fee from purchases made. There is no cost to you for this service. Reviews & opinions are not affected by this.
EngineeringPlans.com is not an architectural/engineering firm but partners with design professionals to provide compliant content as applicable. Each firm is responsible for their respective contributions.
This site is protected by reCAPTCHA and the Google Privacy Policy and Terms of Service apply.
2026

© EngineeringPlans.com All rights reserved.​

Shopping Cart