FL22241
Most Recent Revision
FL22241-R8
Revision Folder
Manufacturer
Report Status
Approved
Code
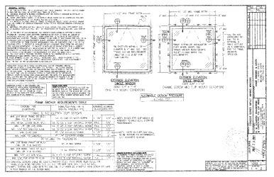
2023 Florida Building Code
Validator
Window and Door Manufacturers Association
Approvals in this folder:
Revision History
FL22241-R7
Revision Folder
FL22241-R6
Revision Folder
FL22241-R5
Revision Folder
FL22241-R4
Revision Folder
FL22241-R3
Revision Folder
FL22241-R2
Revision Folder
Manufacturer Info
Kolbe Windows and Doors - Manawa is a leading manufacturer of premium windows, patio doors, and entry doors. Located in Manawa, WI, the company has a long-standing reputation for providing quality products and exceptional customer service. Employing a team of skilled craftspeople, Kolbe Windows and Doors - Manawa utilizes state-of-the-art technology to create energy-efficient and durable windows and doors that enhance the beauty and comfort of homes and businesses. View all listings
* This manufacturer has not claimed their profile. Any logo or description displayed above has been generated by AI.
Folder QR Code
Shopping Cart
