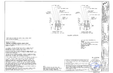
FL22528

Save to Favorites
Most Recent Revision

Revision History
Manufacturer Info
E.S. Windows, Inc. is a premier window and door manufacturer located in the Pacific Northwest, specializing in custom-crafted products for residential and commercial applications. Renowned for their dedication to quality and energy efficiency, the company has earned a reputation for excellence through its commitment to innovation, sustainability, and personalized customer service. View all listings
* This manufacturer has not claimed their profile. Any logo or description displayed above has been generated by AI.
Folder QR Code
FL22528 Listing QR Code

EngineeringPlans.com provides an independent way to search Florida, Miami Dade Product Approvals, & product evaluations from other listed agencies & is not affiliated with the State of Florida, Miami-Dade County, FloridaBuilding.org, miamidade.gov, Intertek, CALADBS, Dr. J’s Engineering, or any other listed agency in any way. Information provided from this website is obtained from public records and must be verified by the source agency prior to use. EngineeringPlans.com is not responsible for the accuracy or use of any information contained herein.

Information, methodology, logos, photos, & trademarked names on this website may not be used, reproduced, distributed, or modified without the written permission of EngineeringPlans.com or they’re corresponding owners. Any information provided by this site is not binding and shall not be used or taken as fact without the written certification of a licensed Design Professional.

EngineeringPlans.com may contain affiliate links in posts & pages & may receive a small fee from purchases made. There is no cost to you for this service. Reviews & opinions are not affected by this.
EngineeringPlans.com is not an architectural/engineering firm but partners with design professionals to provide compliant content as applicable. Each firm is responsible for their respective contributions.
This site is protected by reCAPTCHA and the Google Privacy Policy and Terms of Service apply.
2026

© EngineeringPlans.com All rights reserved.​

Shopping Cart