Search from thousands of Florida, Miami-Dade & other Engineering Plans. Search all at once, save, share, & monitor listings, all for free.
Sign Up - Look inside Approval content with our DeepSearch reports -
Learn More
Model:
03. Extruded Aluminum 300CA & RA Series
Database:
Florida Product Approval
Description:
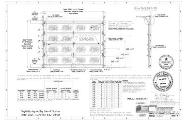
Extruded Aluminum Series sectional type garage door 10'2"
Subcategory:
Sectional Exterior Door Assemblies
Evaluator:
John E. Scates - PE-51737
Validator:
Kurt Dietrich PE
Official Site Status:
Pending FBC Approval
Compliance Method:
Evaluation Report from a Florida Registered Architect or a Licensed Florida Professional Engineer
Submission Date:
October 10, 2025
Validation Date:
October 13, 2025
Design Pressures:
-52psf / +48psf
Possible CSI Codes:
CSI Code: 08 13 16 - Aluminum Doors
CSI Code: 08 13 16.13 - Aluminum Terrace Doors
CSI Code: 08 11 16 - Aluminum Doors and Frames
CSI Code: 08 36 13 - Sectional Doors
CSI Code: 08 13 13.13 - Standard Hollow Metal Doors
Other:
Glazing does meet the impact resistant requirement for windborne debris regions.
Notes:
Date Submitted: October 10, 2025Date Validated: October 13, 2025Entity: Compliance Method: Evaluation Report from a Florida Registered Architect or a Licensed Florida Professional EngineerOther: Glazing does meet the impact resistant requirement for windborne debris regions.Official Site Status: Pending FBC ApprovalSubcategory: Sectional Exterior Door Assemblies
Search the National Fenestration Rating Council (NFRC) for Energy Efficiency information
Change Log effective March 1st 2023
Approval & Installation Documents
PR INSTL DOCS FL27667 R5 II WL-C300-0122-08-48-52-RE SFLTX
View
Download
PR TECH DOCS FL27667 R5 AE EVALREPT C300 SFLTX
View
Download
Please log in & make sure your email is verified before viewing & downloading documents.
Thanks! You can now access your file with the button below.
You may also access all other files without any more popups.
Access File
A free account unlocks:
Access additional search features
Save & share searches
Search all databases at the same time
Monitor new listings
Track listing updates
Access download history
Create projects & organize approvals
Stay up to date with new features & industry news
A free account unlocks:
Save & share searches
Access additional search features
Search all databases at the same time
Monitor new listings Learn More
Track listing updates Learn More
Access download history
Create projects & organize approvals
Stay up to date with new features & industry news
Add Listing to Collection(s):
Added to favorites
Please create an account to use this feature