Search from thousands of Florida, Miami-Dade & other Engineering Plans. Search all at once, save, share, & monitor listings, all for free.
Sign Up - Look inside Approval content with our DeepSearch reports -
Learn More
Database:
Florida Product Approval
Description:
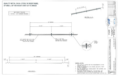
26 Ga. Steel (min) 5V Roof Panel, 24" Wide x 3/8" Rib Height, over 1/2" Plywood.
Subcategory:
Metal Roofing
Evaluator:
Scott Wolters - PE-62354
Validator:
Lucas A. Turner, P.E., MBA
Official Site Status:
Approved
Compliance Method:
Evaluation Report from a Florida Registered Architect or a Licensed Florida Professional Engineer
Submission Date:
August 27, 2024
Validation Date:
August 29, 2024
Design Pressures:
-116psf / +0psf
Possible CSI Codes:
CSI Code: 07 41 00 - Roof Panels
CSI Code: 07 41 13 - Metal Roof Panels
CSI Code: 07 41 63 - Fabricated Roof Panel Assemblies
CSI Code: 07 63 00 - Sheet Metal Roofing Specialties
CSI Code: 07 41 23 - Wood Roof Panels
Other:
Please see Installation Drawings and Eval Report for Limits of Use.
Notes:
Date Submitted: August 27, 2024Date Validated: August 29, 2024Entity: Compliance Method: Evaluation Report from a Florida Registered Architect or a Licensed Florida Professional EngineerOther: Please see Installation Drawings and Eval Report for Limits of Use.Official Site Status: ApprovedSubcategory: Metal Roofing
Change Log effective March 1st 2023
Approval & Installation Documents
PR INSTL DOCS FL27933 R1 II QM 5V DWG
View
Download
PR TECH DOCS FL27933 R1 AE QM 5V EVAL
View
Download
Please log in & make sure your email is verified before viewing & downloading documents.
Thanks! You can now access your file with the button below.
You may also access all other files without any more popups.
Access File
A free account unlocks:
Access additional search features
Save & share searches
Search all databases at the same time
Monitor new listings
Track listing updates
Access download history
Create projects & organize approvals
Stay up to date with new features & industry news
A free account unlocks:
Save & share searches
Access additional search features
Search all databases at the same time
Monitor new listings Learn More
Track listing updates Learn More
Access download history
Create projects & organize approvals
Stay up to date with new features & industry news
Add Listing to Collection(s):
Added to favorites
Please create an account to use this feature