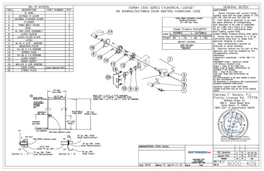
FL30725
Most Recent Revision
FL30725-R5
Revision Folder
Manufacturer
Report Status
Approved
Code
2023 Florida Building Code
Validator
Zachary R. Priest, P.E.
Approvals in this folder:
Revision History
FL30725-R4
Revision Folder
FL30725-R3
Revision Folder
FL30725-R2
Revision Folder
FL30725-R1
Revision Folder
FL30725-R0
Revision Folder
Manufacturer Info
Dormakaba USA Inc. / Door Hardware, a leading provider of access control and security solutions, offers a wide range of products from door closers and hinges to locks and electronic access systems. With a commitment to innovation and quality, Dormakaba hardware enhances security, convenience, and style for various commercial, residential, and industrial applications. View all listings
* This manufacturer has not claimed their profile. Any logo or description displayed above has been generated by AI.
Folder QR Code
Shopping Cart