FL32009.12-R7
Report Status
Approved
Code Version
2023 Florida Building Code
Application Type
Revision
Folio:
Model:
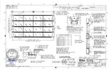
12 W6-16 C-AL2-1F499: AX, AXU, 904, 904U
Manufacturer:
Database:
Florida Product Approval
Source Link:
Description:
Full Vision Aluminum Frame WINDCODE® W6 Sectional Door, up to 162 wide
Listing Details
Category:
Doors
Subcategory:
Sectional Exterior Door Assemblies
Evaluator:
Scott Hamilton - PE-63286
Validator:
Gary Pfuehler
Official Site Status:
Approved
Compliance Method:
Evaluation Report from a Florida Registered Architect or a Licensed Florida Professional Engineer
Entity:
Specifications
Submission Date:
February 29, 2024
Validation Date:
February 29, 2024
Design Pressures:
-42psf / +40psf
Possible CSI Codes:
CSI Code: 08 11 16 - Aluminum Doors and Frames
CSI Code: 08 11 69.23 - Aluminum Storm Doors and Frames
CSI Code: 08 13 16 - Aluminum Doors
CSI Code: 06 48 13 - Exterior Wood Door Frames
CSI Code: 08 11 66.23 - Aluminum Screen Doors and Frames
Other:
Doors with standard glazing meet the wind load requirements of the building code but DO NOT meet the impact resistant requirement for windborne debris regions.
Notes:
Date Submitted: February 29, 2024
Date Validated: February 29, 2024
Entity:
Compliance Method: Evaluation Report from a Florida Registered Architect or a Licensed Florida Professional Engineer
Other: Doors with standard glazing meet the wind load requirements of the building code but DO NOT meet the impact resistant requirement for windborne debris regions.
Official Site Status: Approved
Subcategory: Sectional Exterior Door Assemblies
Contact Information
Representative:
Mark Westerfield
Address:
8585 Duke Blvd.,
Mason, Ohio 45040 USA
Mason, Ohio 45040 USA
Phone:
Listing Changes
Last Synced: 04/09/2026
Change Log effective March 1st 2023
Please sign in or create an account to view listing changes
Approval & Installation Documents

PR INSTL DOCS FL32009 R7 II 105826-REV00

PR TECH DOCS FL32009 R7 AE CCER 200608-A
QR Code To This Listing