Search from thousands of Florida, Miami-Dade & other Engineering Plans. Search all at once, save, share, & monitor listings, all for free.
Sign Up - Look inside Approval content with our DeepSearch reports -
Learn More
Database:
Florida Product Approval
Description:
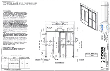
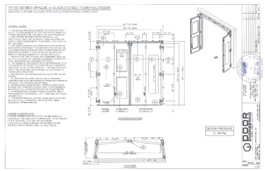
Opaque or Glazed Steel Bi-Fold Door in Steel Frame. (LMI Level D)
Subcategory:
Sectional Exterior Door Assemblies
Evaluator:
Scott Wolters - PE-62354
Validator:
Lucas A. Turner, P.E., MBA
Official Site Status:
Approved
Compliance Method:
Evaluation Report from a Florida Registered Architect or a Licensed Florida Professional Engineer
Submission Date:
June 22, 2025
Validation Date:
July 8, 2025
Design Pressures:
-65psf / +65psf
Possible CSI Codes:
CSI Code: 08 11 13.13 - Standard Hollow Metal Doors and Frames
CSI Code: 08 11 13 - Hollow Metal Doors and Frames
CSI Code: 08 11 66.13 - Steel Screen Doors and Frames
CSI Code: 08 14 23.13 - Metal-Faced Wood Doors
CSI Code: 08 11 00 - Metal Doors and Frames
Other:
Please see Installation Drawings and Eval Report for Limits of Use.
Notes:
Date Submitted: June 22, 2025Date Validated: July 8, 2025Entity: Compliance Method: Evaluation Report from a Florida Registered Architect or a Licensed Florida Professional EngineerOther: Please see Installation Drawings and Eval Report for Limits of Use.Official Site Status: ApprovedSubcategory: Sectional Exterior Door Assemblies
Search the National Fenestration Rating Council (NFRC) for Energy Efficiency information
Change Log effective March 1st 2023
Approval & Installation Documents
PR INSTL DOCS FL32280 R5 II FF70 DWG
View
Download
PR INSTL DOCS FL32280 R5 II FF700 DWG
View
Download
PR TECH DOCS FL32280 R5 AE FF70 EVAL2
View
Download
PR TECH DOCS FL32280 R5 AE FF700 EVAL2
View
Download
Please log in & make sure your email is verified before viewing & downloading documents.
Thanks! You can now access your file with the button below.
You may also access all other files without any more popups.
Access File
A free account unlocks:
Access additional search features
Save & share searches
Search all databases at the same time
Monitor new listings
Track listing updates
Access download history
Create projects & organize approvals
Stay up to date with new features & industry news
A free account unlocks:
Save & share searches
Access additional search features
Search all databases at the same time
Monitor new listings Learn More
Track listing updates Learn More
Access download history
Create projects & organize approvals
Stay up to date with new features & industry news
Add Listing to Collection(s):
Added to favorites
Please create an account to use this feature