Search from thousands of Florida, Miami-Dade & other Engineering Plans. Search all at once, save, share, & monitor listings, all for free.
Sign Up - Look inside Approval content with our DeepSearch reports -
Learn More
Model:
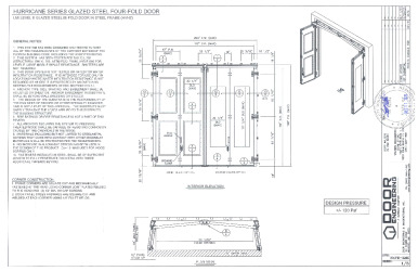
Hurricane Series Four-Fold
Database:
Florida Product Approval
Description:
Glazed Steel Bi-Fold Door in Steel Frame. (LMI Level E)
Subcategory:
Sectional Exterior Door Assemblies
Evaluator:
Scott Wolters - PE-62354
Validator:
Lucas A. Turner, P.E., MBA
Official Site Status:
Approved
Compliance Method:
Evaluation Report from a Florida Registered Architect or a Licensed Florida Professional Engineer
Submission Date:
March 23, 2024
Validation Date:
March 23, 2024
Design Pressures:
-120psf / +120psf
Possible CSI Codes:
CSI Code: 08 11 19 - Stainless-Steel Doors and Frames
CSI Code: 08 11 66.13 - Steel Screen Doors and Frames
CSI Code: 08 11 13.13 - Standard Hollow Metal Doors and Frames
CSI Code: 08 11 13 - Hollow Metal Doors and Frames
CSI Code: 08 11 00 - Metal Doors and Frames
Other:
Please see Installation Drawings and Eval Report for Limits of Use.
Notes:
Date Submitted: March 23, 2024Date Validated: March 23, 2024Entity: Compliance Method: Evaluation Report from a Florida Registered Architect or a Licensed Florida Professional EngineerOther: Please see Installation Drawings and Eval Report for Limits of Use.Official Site Status: ApprovedSubcategory: Sectional Exterior Door Assemblies
Search the National Fenestration Rating Council (NFRC) for Energy Efficiency information
Change Log effective March 1st 2023
Approval & Installation Documents
PR INSTL DOCS FL32280 R4 II H4FD DWG
View
Download
PR TECH DOCS FL32280 R4 AE H4FD EVAL
View
Download
Please log in & make sure your email is verified before viewing & downloading documents.
Thanks! You can now access your file with the button below.
You may also access all other files without any more popups.
Access File
A free account unlocks:
Access additional search features
Save & share searches
Search all databases at the same time
Monitor new listings
Track listing updates
Access download history
Create projects & organize approvals
Stay up to date with new features & industry news
A free account unlocks:
Save & share searches
Access additional search features
Search all databases at the same time
Monitor new listings Learn More
Track listing updates Learn More
Access download history
Create projects & organize approvals
Stay up to date with new features & industry news
Add Listing to Collection(s):
Added to favorites
Please create an account to use this feature