Search from thousands of Florida, Miami-Dade & other Engineering Plans. Search all at once, save, share, & monitor listings, all for free.
Sign Up - Look inside Approval content with our DeepSearch reports -
Learn More
Model:
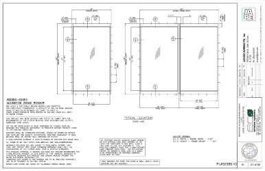
Series 620 Aluminum Fixed Window
Database:
Florida Product Approval
Description:
Large Missile Impact Resistant, Aluminum Fixed Window
Category:
Windows Mullions and Skylights
Evaluator:
Javad Ahmad - PE-70592
Validator:
Ammad Riaz, P.E.
Official Site Status:
Approved
Compliance Method:
Evaluation Report from a Florida Registered Architect or a Licensed Florida Professional Engineer
Submission Date:
December 13, 2024
Validation Date:
January 6, 2025
Possible CSI Codes:
CSI Code: 08 55 23 - Blast-Resistant Windows
CSI Code: 08 55 13 - Tornado-Resistant Windows
CSI Code: 08 51 69 - Metal Storm Windows
CSI Code: 08 01 60 - Operation and Maintenance of Skylights and Roof Windows
CSI Code: 08 67 00 - Skylight Protection and Screens
Other:
Please see the enclosed documents for product performance information, anchorage details, and anchor type, size, and spacing information.
Notes:
Date Submitted: December 13, 2024Date Validated: January 6, 2025Entity: Compliance Method: Evaluation Report from a Florida Registered Architect or a Licensed Florida Professional EngineerOther: Please see the enclosed documents for product performance information, anchorage details, and anchor type, size, and spacing information.Official Site Status: ApprovedSubcategory: Fixed
Search the National Fenestration Rating Council (NFRC) for Energy Efficiency information
Change Log effective March 1st 2023
Approval & Installation Documents
PR INSTL DOCS FL32389 R6 II SERIES 620 FIXED WINDOW-LMI-JA-1844-24-SS
View
Download
PR INSTL DOCS FL32389 R6 II SERIES 620 FIXED WINDOW-LMI-JA-1844-24-SS1
View
Download
PR TECH DOCS FL32389 R6 AE ECO 620-FIXED WINDOW-LMI-PA EVR
View
Download
PR TECH DOCS FL32389 R6 AE ECO 620-FIXED WINDOW-LMI-PA EVR
View
Download
Please log in & make sure your email is verified before viewing & downloading documents.
Thanks! You can now access your file with the button below.
You may also access all other files without any more popups.
Access File
A free account unlocks:
Access additional search features
Save & share searches
Search all databases at the same time
Monitor new listings
Track listing updates
Access download history
Create projects & organize approvals
Stay up to date with new features & industry news
A free account unlocks:
Save & share searches
Access additional search features
Search all databases at the same time
Monitor new listings Learn More
Track listing updates Learn More
Access download history
Create projects & organize approvals
Stay up to date with new features & industry news
Add Listing to Collection(s):
Added to favorites
Please create an account to use this feature