FL38444.2-R0
Report Status
Approved
Code Version
2020 Florida Building Code
Application Type
New
Folio:
Model:
MOD LPS 96X120 XX
Manufacturer:
Database:
Florida Product Approval
Source Link:
Description:
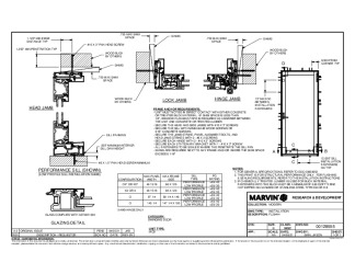
Modern Outswing Door Low Profile Sill 407-H-1160
Listing Details
Specifications
Submission Date:
April 15, 2021
Validation Date:
April 21, 2021
Design Pressures:
-30psf / +30psf
Possible CSI Codes:
CSI Code: 08 17 00 - Integrated Door Opening Assemblies
CSI Code: 08 01 17 - Operation and Maintenance of Integrated Door Opening Assemblies
CSI Code: 08 17 23 - Integrated Wood Door Opening Assemblies
CSI Code: 08 17 13 - Integrated Metal Door Opening Assemblies
CSI Code: 08 17 43 - Integrated Composite Door Opening Assemblies
Other:
Max frame size 96"X120" Covers XX and X configurations
Notes:
Date Submitted: April 15, 2021
Date Validated: April 21, 2021
Entity: Window and Door Manufacturer Association
Compliance Method: Certification Mark or Listing
Other: Max frame size 96"X120" Covers XX and X configurations
Official Site Status: Approved
Subcategory: Swinging Exterior Door Assemblies
Contact Information
Representative:
Cheryl Hill
Address:
Hwy 11 West,
Warroad, Minnesota 56763 USA
Warroad, Minnesota 56763 USA
Phone:
Website:
Listing Changes
Last Synced: 04/09/2026
Change Log effective March 1st 2023
Please sign in or create an account to view listing changes
Approval & Installation Documents

PR CERTIFICATE FL38444 R0 C CAC 1160.02.03

PR INSTL DOCS FL38444 R0 II 128555
QR Code To This Listing