Search from thousands of Florida, Miami-Dade & other Engineering Plans. Search all at once, save, share, & monitor listings, all for free.
Sign Up - Look inside Approval content with our DeepSearch reports -
Learn More
Database:
Florida Product Approval
Description:
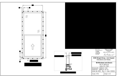
36x84 Fin Frame
Category:
Windows Mullions and Skylights
Validator:
Steven M. Urich, PE
Official Site Status:
Approved
Compliance Method:
Certification Mark or Listing
Entity:
Fenestration and Glazing Industry Alliance (formerly AAMA)
Submission Date:
October 21, 2025
Validation Date:
October 21, 2025
Design Pressures:
-35psf / +35psf
Possible CSI Codes:
CSI Code: 08 63 00 - Metal-Framed Skylights
CSI Code: 08 63 19 - Vaulted Metal-Framed Skylights
CSI Code: 08 63 16 - Pyramidal Metal-Framed Skylights
CSI Code: 08 63 23 - Ridge Metal-Framed Skylights
CSI Code: 08 63 13 - Domed Metal-Framed Skylights
Notes:
Date Submitted: October 21, 2025Date Validated: October 21, 2025Entity: Fenestration and Glazing Industry Alliance (formerly AAMA)Compliance Method: Certification Mark or ListingOther: LC-PG35Official Site Status: ApprovedSubcategory: Single Hung
Search the National Fenestration Rating Council (NFRC) for Energy Efficiency information
Change Log effective March 1st 2023
Approval & Installation Documents
PR CERTIFICATE FL41886 R10 C CAC APC(18225)G1596.01-109-47-R0 3540 SH 36X84(080526)
View
Download
PR INSTL DOCS FL41886 R10 II 29583.01-1001 - 3540 SH 36X84 NON-IMPACT INSTALLATIONS
View
Download
PR TECH DOCS FL41886 R10 AE 29583.01-107-16-R0 (3540 SH 36X84)
View
Download
Please log in & make sure your email is verified before viewing & downloading documents.
Thanks! You can now access your file with the button below.
You may also access all other files without any more popups.
Access File
A free account unlocks:
Access additional search features
Save & share searches
Search all databases at the same time
Monitor new listings
Track listing updates
Access download history
Create projects & organize approvals
Stay up to date with new features & industry news
A free account unlocks:
Save & share searches
Access additional search features
Search all databases at the same time
Monitor new listings Learn More
Track listing updates Learn More
Access download history
Create projects & organize approvals
Stay up to date with new features & industry news
Add Listing to Collection(s):
Added to favorites
Please create an account to use this feature