Search from thousands of Florida, Miami-Dade & other Engineering Plans. Search all at once, save, share, & monitor listings, all for free.
Sign Up - Look inside Approval content with our DeepSearch reports -
Learn More
Model:
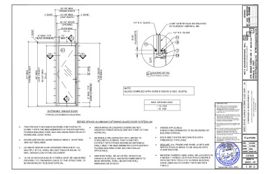
SPA100 Aluminum Outswing Glass Door LMI
Database:
Florida Product Approval
Description:
SPA100 Aluminum Outswing Glass Door LMI
Subcategory:
Swinging Exterior Door Assemblies
Evaluator:
Yiping Wang - PE-55983
Official Site Status:
Approved
Compliance Method:
Evaluation Report from a Florida Registered Architect or a Licensed Florida Professional Engineer
Submission Date:
December 19, 2023
Validation Date:
January 28, 2024
Design Pressures:
-70psf / +70psf
Possible CSI Codes:
CSI Code: 08 32 13 - Sliding Aluminum-Framed Glass Doors
CSI Code: 08 13 16 - Aluminum Doors
CSI Code: 08 13 16.13 - Aluminum Terrace Doors
CSI Code: 08 17 13 - Integrated Metal Door Opening Assemblies
CSI Code: 08 11 16 - Aluminum Doors and Frames
Notes:
Date Submitted: December 19, 2023Date Validated: January 28, 2024Entity: Compliance Method: Evaluation Report from a Florida Registered Architect or a Licensed Florida Professional EngineerOther: Official Site Status: ApprovedSubcategory: Swinging Exterior Door Assemblies
Search the National Fenestration Rating Council (NFRC) for Energy Efficiency information
Change Log effective March 1st 2023
Approval & Installation Documents
PR INSTL DOCS FL45991 R0 II SPA100 ALUMINUM FRENCH DOOR LMI AD23-48 FL45991 REV12.19.2023 SS
View
Download
PR TECH DOCS FL45991 R0 AE EVALUATION REPORT SPA100 FRENCH DOOR FBC 2023-SS
View
Download
Please log in & make sure your email is verified before viewing & downloading documents.
Thanks! You can now access your file with the button below.
You may also access all other files without any more popups.
Access File
A free account unlocks:
Access additional search features
Save & share searches
Search all databases at the same time
Monitor new listings
Track listing updates
Access download history
Create projects & organize approvals
Stay up to date with new features & industry news
A free account unlocks:
Save & share searches
Access additional search features
Search all databases at the same time
Monitor new listings Learn More
Track listing updates Learn More
Access download history
Create projects & organize approvals
Stay up to date with new features & industry news
Add Listing to Collection(s):
Added to favorites
Please create an account to use this feature