Search from thousands of Florida, Miami-Dade & other Engineering Plans. Search all at once, save, share, & monitor listings, all for free.
Sign Up - Look inside Approval content with our DeepSearch reports -
Learn More
Database:
Florida Product Approval
Description:
R-PG50-1105x2426 (44x96)-H
Category:
Windows Mullions and Skylights
Validator:
Fenestration and Glazing Industry Alliance (formerly AAMA)
Official Site Status:
Approved
Compliance Method:
Certification Mark or Listing
Entity:
Fenestration and Glazing Industry Alliance (formerly AAMA)
Submission Date:
June 13, 2024
Validation Date:
November 15, 2024
Possible CSI Codes:
CSI Code: 08 62 00 - Unit Skylights
CSI Code: 08 63 13 - Domed Metal-Framed Skylights
CSI Code: 08 63 00 - Metal-Framed Skylights
CSI Code: 08 63 16 - Pyramidal Metal-Framed Skylights
CSI Code: 08 64 00 - Plastic-Framed Skylights
Notes:
Date Submitted: June 13, 2024Date Validated: November 15, 2024Entity: Fenestration and Glazing Industry Alliance (formerly AAMA)Compliance Method: Certification Mark or ListingOther: Official Site Status: ApprovedSubcategory: Single Hung
Search the National Fenestration Rating Council (NFRC) for Energy Efficiency information
Change Log effective March 1st 2023
Approval & Installation Documents
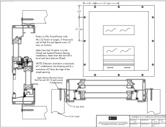
PR INSTL DOCS FL46761 R0 II INSPIRE S.H. INSTALLATION
View
Download
PR INSTL DOCS FL46761 R0 II WINDOW INSTALLATION INSTRUCTIONS
View
Download
PR CERTIFICATE FL46761 R0 C CAC ELEVATE WINDOWS - INSPIRE SH (9) (FIN) JAN. 2024
View
Download
PR INSTL DOCS FL46761 R0 II INSPIRE S.H.INSTALLATION (AS)
View
Download
PR INSTL DOCS FL46761 R0 II WINDOW INSTALLATION INSTRUCTIONS (AS)
View
Download
Please log in & make sure your email is verified before viewing & downloading documents.
Thanks! You can now access your file with the button below.
You may also access all other files without any more popups.
Access File
A free account unlocks:
Access additional search features
Save & share searches
Search all databases at the same time
Monitor new listings
Track listing updates
Access download history
Create projects & organize approvals
Stay up to date with new features & industry news
A free account unlocks:
Save & share searches
Access additional search features
Search all databases at the same time
Monitor new listings Learn More
Track listing updates Learn More
Access download history
Create projects & organize approvals
Stay up to date with new features & industry news
Add Listing to Collection(s):
Added to favorites
Please create an account to use this feature