Search from thousands of Florida, Miami-Dade & other Engineering Plans. Search all at once, save, share, & monitor listings, all for free.
Sign Up - Look inside Approval content with our DeepSearch reports -
Learn More
Model:
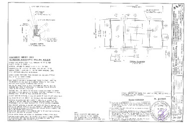
Grandeur Series 2023 Aluminum Horizontal Rolling Window
Database:
Florida Product Approval
Description:
Large missile impact resistant aluminum horizontal rolling window.
Category:
Windows Mullions and Skylights
Subcategory:
Horizontal Slider
Evaluator:
Jalal Farooq - PE-81223
Validator:
Abel Carrasco, PE
Official Site Status:
Approved
Compliance Method:
Evaluation Report from a Florida Registered Architect or a Licensed Florida Professional Engineer
Submission Date:
June 19, 2024
Validation Date:
June 26, 2024
Design Pressures:
-80psf / +70psf
Possible CSI Codes:
CSI Code: 08 51 23.23 - Cold-Rolled Steel Windows
CSI Code: 08 51 69 - Metal Storm Windows
CSI Code: 08 51 23.13 - Hot-Rolled Steel Windows
CSI Code: 08 55 13 - Tornado-Resistant Windows
CSI Code: 08 51 13 - Aluminum Windows
Other:
See drawing 24-29F for span vs load combinations and installation details.
Notes:
Date Submitted: June 19, 2024Date Validated: June 26, 2024Entity: Compliance Method: Evaluation Report from a Florida Registered Architect or a Licensed Florida Professional EngineerOther: See drawing 24-29F for span vs load combinations and installation details.Official Site Status: ApprovedSubcategory: Horizontal Slider
Search the National Fenestration Rating Council (NFRC) for Energy Efficiency information
Change Log effective March 1st 2023
Approval & Installation Documents
PR INSTL DOCS FL46843 R0 II SS - 2023 HS (LMI) - DWG 24-29F 2023.1
View
Download
PR INSTL DOCS FL46843 R0 II SS - 2023 HS (LMI) - DWG 24-29F 2023
View
Download
PR TECH DOCS FL46843 R0 AE SS - 2023 HS (LMI) - PAE 2023
View
Download
Please log in & make sure your email is verified before viewing & downloading documents.
Thanks! You can now access your file with the button below.
You may also access all other files without any more popups.
Access File
A free account unlocks:
Access additional search features
Save & share searches
Search all databases at the same time
Monitor new listings
Track listing updates
Access download history
Create projects & organize approvals
Stay up to date with new features & industry news
A free account unlocks:
Save & share searches
Access additional search features
Search all databases at the same time
Monitor new listings Learn More
Track listing updates Learn More
Access download history
Create projects & organize approvals
Stay up to date with new features & industry news
Add Listing to Collection(s):
Added to favorites
Please create an account to use this feature