FL47102.1-R0
Report Status
Approved
Code Version
2023 Florida Building Code
Application Type
New
Folio:
Model:
1150S
Manufacturer:
Database:
Florida Product Approval
Source Link:
Description:
1150S - D Missile - Awning or Fixed
Listing Details
Category:
Windows Mullions and Skylights
Subcategory:
Awning
Evaluator:
Wayne K. Helmila - PE-59092
Validator:
Scott Wolters, PE
Official Site Status:
Approved
Compliance Method:
Evaluation Report from a Florida Registered Architect or a Licensed Florida Professional Engineer
Entity:
Specifications
Submission Date:
November 21, 2024
Validation Date:
January 3, 2025
Design Pressures:
-75psf / +75psf
Possible CSI Codes:
CSI Code: 08 62 00 - Unit Skylights
CSI Code: 10 73 13.13 - Metal Awnings
CSI Code: 10 73 13.36 - Point Supported Glass Awnings
CSI Code: 08 62 19 - Vaulted Unit Skylights
CSI Code: 08 62 13 - Domed Unit Skylights
Other:
Notes:
Date Submitted: November 21, 2024
Date Validated: January 3, 2025
Entity:
Compliance Method: Evaluation Report from a Florida Registered Architect or a Licensed Florida Professional Engineer
Other:
Official Site Status: Approved
Subcategory: Awning
Contact Information
Representative:
N/A
Listing Changes
Last Synced: 03/22/2026
Change Log effective March 1st 2023
Please sign in or create an account to view listing changes
Approval & Installation Documents

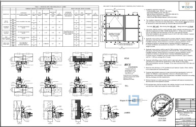
PR INSTL DOCS FL47102 R0 II WKH - 1150S PO-FX INSTALL - D MISSILE - F-CLIP STAMPED DRAWINGS - 2023

PR INSTL DOCS FL47102 R0 II WKH - 1150S PO-FX INSTALL - D MISSILE - SNAPTRIM STAMPED DRAWINGS - 2023

PR INSTL DOCS FL47102 R0 II WKH - 1150S PO-FX INSTALL - D MISSILE - SUBFRAME STAMPED DRAWINGS - 2023
![PR TECH DOCS FL47102 R0 AE WKH - 2308268 - 1150S [FX-PO] (IMPACT) D MISSILE - STAMPED EVAL REPORT - 2023](https://www.engineeringplans.com/document_images/FL47102_R0_AE_WKH_-_2308268_-_1150S_%5BFX-PO%5D_%28Impact%29_D_Missile_-_Stamped_Eval_Report_-_2023-WINCO-EngineeringPlans.jpg)
PR TECH DOCS FL47102 R0 AE WKH - 2308268 - 1150S [FX-PO] (IMPACT) D MISSILE - STAMPED EVAL REPORT - 2023
![PR TECH DOCS FL47102 R0 AE WKH - 2308268 - 1150S [FX-PO] (IMPACT) D MISSILE - STAMPED EVAL REPORT - 2023](https://www.engineeringplans.com/document_images/FL47102_R0_AE_WKH_-_2308268_-_1150S_%5BFX-PO%5D_%28Impact%29_D_Missile_-_Stamped_Eval_Report_-_2023-WINCO-EngineeringPlans.jpg)
PR TECH DOCS FL47102 R0 AE WKH - 2308268 - 1150S [FX-PO] (IMPACT) D MISSILE - STAMPED EVAL REPORT - 2023
QR Code To This Listing