FL47237.1-R0
Report Status
Approved
Code Version
2023 Florida Building Code
Application Type
New
Folio:
Model:
3250
Manufacturer:
Database:
Florida Product Approval
Source Link:
Description:
3250 Combo - D Missile Impact - Fixed - Awning - Casement
Listing Details
Category:
Windows Mullions and Skylights
Subcategory:
Awning
Evaluator:
Wayne K. Helmila - PE-59092
Validator:
Scott Wolters, PE
Official Site Status:
Approved
Compliance Method:
Evaluation Report from a Florida Registered Architect or a Licensed Florida Professional Engineer
Entity:
Specifications
Submission Date:
January 10, 2025
Validation Date:
June 10, 2025
Design Pressures:
-70psf / +70psf
Possible CSI Codes:
CSI Code: 08 62 00 - Unit Skylights
CSI Code: 10 73 13.13 - Metal Awnings
CSI Code: 08 62 16 - Pyramidal Unit Skylights
CSI Code: 08 62 13 - Domed Unit Skylights
CSI Code: 10 73 13.36 - Point Supported Glass Awnings
Other:
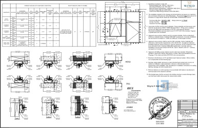
Covers a single D missile rated floating awning in a steel replica (meant to look like an old steel window) aluminum window system.Max Awning Size: 36" x 42"
Notes:
Date Submitted: January 10, 2025
Date Validated: June 10, 2025
Entity:
Compliance Method: Evaluation Report from a Florida Registered Architect or a Licensed Florida Professional Engineer
Other: Covers a single D missile rated floating awning in a steel replica (meant to look like an old steel window) aluminum window system.Max Awning Size: 36" x 42"
Official Site Status: Approved
Subcategory: Awning
Contact Information
Representative:
N/A
Listing Changes
Last Synced: 03/16/2026
Change Log effective March 1st 2023
Please sign in or create an account to view listing changes
Approval & Installation Documents

PR INSTL DOCS FL47237 R0 II WKH - 3250 COMBO - D-MISSILE - INSTALL - F-CLIP - STAMPED DRAWINGS - 2023

PR INSTL DOCS FL47237 R0 II WKH - 3250 COMBO - D-MISSILE - INSTALL - SNAP TRIM - STAMPED DRAWINGS - 2023

PR INSTL DOCS FL47237 R0 II WKH - 3250 COMBO - D-MISSILE - INSTALL - SUB-FRAME - STAMPED DRAWINGS - 2023

PR TECH DOCS FL47237 R0 AE WKH - 2308268 - FPA - 3250 COMBO (IMPACT) - D-MISSILE - STAMPED EVAL REPORT - 2023

PR INSTL DOCS FL47237 R0 II WKH - 3250 COMBO AWNING - D-MISSILE - INSTALL - F-CLIPS STAMPED DRAWINGS 06-03-25

PR INSTL DOCS FL47237 R0 II WKH - 3250 COMBO AWNING - D-MISSILE - INSTALL - SNAP TRIM STAMPED DRAWINGS 06-03-25

PR INSTL DOCS FL47237 R0 II WKH - 3250 COMBO AWNING - D-MISSILE - INSTALL - SUB-FRAME STAMPED DRAWINGS 06-03-25

PR TECH DOCS FL47237 R0 AE WKH - FPA - 3250 COMBO AWNING - D -MISSILE - STAMPED EVAL REPORT 2025 06-03-25
QR Code To This Listing