FL47394.1-R3
Report Status
Approved
Code Version
2023 Florida Building Code
Application Type
Revision
Folio:
Model:
SteelPro (SP24 / SP20)
Manufacturer:
Database:
Florida Product Approval
Source Link:
Description:
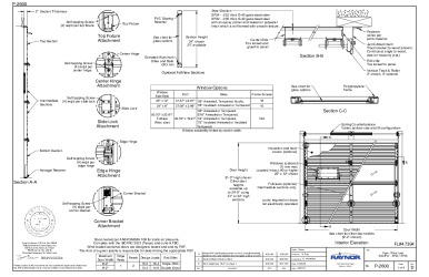
2" thick steel pan commercial sectional garage door w/optional aluminum full view sections
Listing Details
Category:
Doors
Subcategory:
Sectional Exterior Door Assemblies
Evaluator:
Scott A. Brown - PE-65940
Validator:
John E. Scates, PE
Official Site Status:
Approved
Compliance Method:
Evaluation Report from a Florida Registered Architect or a Licensed Florida Professional Engineer
Entity:
Specifications
Submission Date:
October 14, 2025
Validation Date:
October 16, 2025
Possible CSI Codes:
CSI Code: 08 13 16 - Aluminum Doors
CSI Code: 08 13 16.13 - Aluminum Terrace Doors
CSI Code: 08 11 16 - Aluminum Doors and Frames
CSI Code: 08 36 13 - Sectional Doors
CSI Code: 08 36 00 - Panel Doors
Other:
See drawing for pressures. Max door width = 9'-2"
Notes:
Date Submitted: October 14, 2025
Date Validated: October 16, 2025
Entity:
Compliance Method: Evaluation Report from a Florida Registered Architect or a Licensed Florida Professional Engineer
Other: See drawing for pressures. Max door width = 9'-2"
Official Site Status: Approved
Subcategory: Sectional Exterior Door Assemblies
Contact Information
Representative:
Gary Wedekind
Address:
1101 East River Road, P.O. Box 448,
Dixon, Illinois 61021 United States
Dixon, Illinois 61021 United States
Phone:
Website:
Listing Changes
Last Synced: 03/13/2026
Change Log effective March 1st 2023
Please sign in or create an account to view listing changes
Approval & Installation Documents

PR INSTL DOCS FL47394 R3 II P-2600-D S

PR TECH DOCS FL47394 R3 AE PRODUCT EVALUATION 43-D S
QR Code To This Listing