Search from thousands of Florida, Miami-Dade & other Engineering Plans. Search all at once, save, share, & monitor listings, all for free.
Sign Up - Look inside Approval content with our DeepSearch reports -
Learn More
Model:
SteelPro (SP24 / SP20)
Database:
Florida Product Approval
Description:
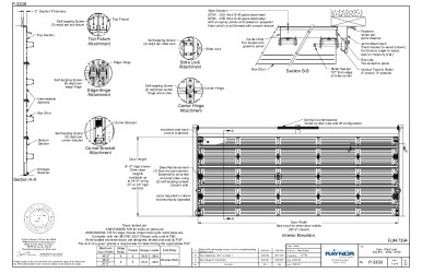
2" thick steel pan commercial sectional garage door.
Subcategory:
Sectional Exterior Door Assemblies
Evaluator:
Scott A. Brown - PE-65940
Validator:
Kurt Dietrich PE
Official Site Status:
Pending FBC Approval
Compliance Method:
Evaluation Report from a Florida Registered Architect or a Licensed Florida Professional Engineer
Submission Date:
February 12, 2026
Validation Date:
February 14, 2026
Possible CSI Codes:
CSI Code: 08 36 13 - Sectional Doors
CSI Code: 08 16 00 - Composite Doors
CSI Code: 08 36 00 - Panel Doors
CSI Code: 08 36 16 - Single-Panel Doors
CSI Code: 08 13 13.13 - Standard Hollow Metal Doors
Other:
See drawing for pressures. Max door width = 20'-2". Windows not available.
Notes:
Date Submitted: February 12, 2026Date Validated: February 14, 2026Entity: Compliance Method: Evaluation Report from a Florida Registered Architect or a Licensed Florida Professional EngineerOther: See drawing for pressures. Max door width = 20'-2". Windows not available.Official Site Status: Pending FBC ApprovalSubcategory: Sectional Exterior Door Assemblies
Search the National Fenestration Rating Council (NFRC) for Energy Efficiency information
Change Log effective March 1st 2023
Approval & Installation Documents
PR INSTL DOCS FL47394 R4 II P-3339-C S
View
Download
PR TECH DOCS FL47394 R4 AE PRODUCT EVALUATION 43-E S
View
Download
Please log in & make sure your email is verified before viewing & downloading documents.
Thanks! You can now access your file with the button below.
You may also access all other files without any more popups.
Access File
A free account unlocks:
Access additional search features
Save & share searches
Search all databases at the same time
Monitor new listings
Track listing updates
Access download history
Create projects & organize approvals
Stay up to date with new features & industry news
A free account unlocks:
Save & share searches
Access additional search features
Search all databases at the same time
Monitor new listings Learn More
Track listing updates Learn More
Access download history
Create projects & organize approvals
Stay up to date with new features & industry news
Add Listing to Collection(s):
Added to favorites
Please create an account to use this feature