FL47556.2-R0
Report Status
Approved
Code Version
2023 Florida Building Code
Application Type
New
Folio:
Model:
3250
Manufacturer:
Database:
Florida Product Approval
Source Link:
Description:
3250 Combo Fixed - E Missile Impact
Listing Details
Category:
Windows Mullions and Skylights
Subcategory:
Fixed
Evaluator:
Wayne K. Helmila - PE-59092
Validator:
Scott Wolters, PE
Official Site Status:
Approved
Compliance Method:
Evaluation Report from a Florida Registered Architect or a Licensed Florida Professional Engineer
Entity:
Specifications
Submission Date:
June 6, 2025
Validation Date:
June 10, 2025
Design Pressures:
-90psf / +90psf
Possible CSI Codes:
CSI Code: 08 62 00 - Unit Skylights
CSI Code: 08 62 16 - Pyramidal Unit Skylights
CSI Code: 08 01 62 - Operation and Maintenance of Unit Skylights
CSI Code: 08 67 00 - Skylight Protection and Screens
CSI Code: 08 75 00 - Window Hardware
Other:
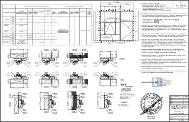
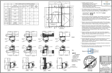
Max fixed lite tested: 66-1/2" x 38"
Notes:
Date Submitted: June 6, 2025
Date Validated: June 10, 2025
Entity:
Compliance Method: Evaluation Report from a Florida Registered Architect or a Licensed Florida Professional Engineer
Other: Max fixed lite tested: 66-1/2" x 38"
Official Site Status: Approved
Subcategory: Fixed
Contact Information
Representative:
N/A
Listing Changes
Last Synced: 03/22/2026
Change Log effective March 1st 2023
Please sign in or create an account to view listing changes
Approval & Installation Documents

PR INSTL DOCS FL47556 R0 II WKH - 3250 COMBO FIXED - E-MISSILE - INSTALL - F-CLIP STAMPED DRAWINGS 06-03-25

PR INSTL DOCS FL47556 R0 II WKH - 3250 COMBO FIXED - E-MISSILE - INSTALL - SNAP TRIM STAMPED DRAWINGS 06-03-25

PR INSTL DOCS FL47556 R0 II WKH - 3250 COMBO FIXED - E-MISSILE - INSTALL - SUB-FRAME STAMPED DRAWINGS 06-03-25

PR TECH DOCS FL47556 R0 AE WKH - FPA - 3250 COMBO FIXED - E -MISSILE - STAMPED EVAL REPORT 2025 06-06-25

PR INSTL DOCS FL47556 R0 II WKH - 3250 COMBO FIXED - E-MISSILE - INSTALL - SUB-FRAME STAMPED DRAWINGS 06-10-25
QR Code To This Listing