FL6525.3-R15
Report Status
Approved
Code Version
2023 Florida Building Code
Application Type
Revision
Folio:
Model:
ELDH 5476
Manufacturer:
Database:
Florida Product Approval
Source Link:
Description:
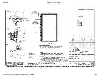
Elevate Fiberglass Clad Wood Double Hung 407-H-783
Listing Details
Specifications
Submission Date:
February 3, 2026
Validation Date:
February 3, 2026
Design Pressures:
-40psf / +40psf
Possible CSI Codes:
CSI Code: 08 63 19 - Vaulted Metal-Framed Skylights
CSI Code: 08 52 13 - Metal-Clad Wood Windows
CSI Code: 08 60 00 - Roof Windows and Skylights
CSI Code: 08 52 16 - Plastic-Clad Wood Windows
CSI Code: 06 48 23 - Stick-Built Wood Windows
Other:
Max Size: 53.5 x 75.75 inches. Glass complies with ASTM E1300
Notes:
Date Submitted: February 3, 2026
Date Validated: February 3, 2026
Entity: Window and Door Manufacturer Association
Compliance Method: Certification Mark or Listing
Other: Max Size: 53.5 x 75.75 inches. Glass complies with ASTM E1300
Official Site Status: Approved
Subcategory: Double Hung
Contact Information
Representative:
Cheryl Hill
Address:
Hwy 11 West,
Warroad, Minnesota 56763 USA
Warroad, Minnesota 56763 USA
Phone:
Website:
Listing Changes
Last Synced: 04/18/2026
Change Log effective March 1st 2023
Please sign in or create an account to view listing changes
Approval & Installation Documents

PR CERTIFICATE FL6525 R15 C CAC CCL783.61.62

PR INSTL DOCS FL6525 R15 II 00052745 ELDH
QR Code To This Listing