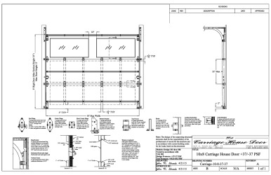
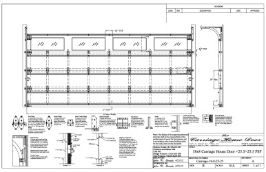
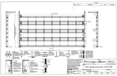
FL8026
Most Recent Revision
FL8026-R8
Revision Folder
Manufacturer
Report Status
Approved
Code
2023 Florida Building Code
Validator
John E. Scates, PE
Approvals in this folder:
Revision History
FL8026-R7
Revision Folder
FL8026-R6
Revision Folder
Manufacturer Info
Carriage House Door Company is a family-owned and operated business established in 1973, specializing in manufacturing, supplying, and installing high-quality custom carriage-style garage doors, entry doors, and driveway gates. They offer a wide selection of materials, styles, and finishes to cater to diverse customer preferences, ensuring that each project reflects the unique architectural character of each property. View all listings
* This manufacturer has not claimed their profile. Any logo or description displayed above has been generated by AI.
Folder QR Code
Shopping Cart
