FL46115

Save to Favorites
Most Recent Revision

FL46115-R4

Revision Folder

Report Status
Approved
Code
2023 Florida Building Code
Validator
Lucas A. Turner, P.E., MBA
Approvals in this folder:

Revision History

FL46115-R3

Revision Folder

Report Status
Approved
Code
2023 Florida Building Code
Validator
Lucas A. Turner, P.E., MBA
Approvals in this folder:
Manufacturer Info
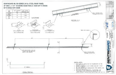
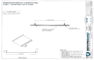
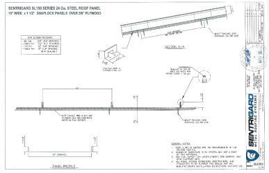
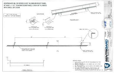
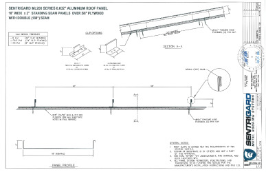
Sentrigard Metal Roofing Systems LLC, an NBHandy company, is a metal roofing contractor specializing in the installation and likely sale of high-quality metal roofing systems. As a subsidiary of NBHandy, they benefit from the resources and experience of a larger parent company, likely offering a broader range of services or a more established reputation within the construction industry. View all listings
* This manufacturer has not claimed their profile. Any logo or description displayed above has been generated by AI.
Folder QR Code
FL46115 Listing QR Code
Shopping Cart