Search from thousands of Florida, Miami-Dade & other Engineering Plans. Search all at once, save, share, & monitor listings, all for free.
Sign Up - Look inside Approval content with our DeepSearch reports -
Learn More
Model:
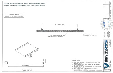
NS100 Series Nailstrip Roof Panel
Database:
Florida Product Approval
Description:
0.032" Aluminum Roof Panel, 16" Wide x 1" Tall Nailstrip, over 5/8" Plywood.
Subcategory:
Metal Roofing
Evaluator:
Scott Wolters - PE-62354
Validator:
Lucas A. Turner, P.E., MBA
Official Site Status:
Approved
Compliance Method:
Evaluation Report from a Florida Registered Architect or a Licensed Florida Professional Engineer
Submission Date:
August 21, 2024
Validation Date:
August 29, 2024
Possible CSI Codes:
CSI Code: 07 41 13 - Metal Roof Panels
CSI Code: 07 41 00 - Roof Panels
CSI Code: 07 63 00 - Sheet Metal Roofing Specialties
CSI Code: 07 41 63 - Fabricated Roof Panel Assemblies
CSI Code: 07 41 33 - Plastic Roof Panels
Other:
Please see Installation Drawings and Eval Report for Limits of Use.
Notes:
Date Submitted: August 21, 2024Date Validated: August 29, 2024Entity: Compliance Method: Evaluation Report from a Florida Registered Architect or a Licensed Florida Professional EngineerOther: Please see Installation Drawings and Eval Report for Limits of Use.Official Site Status: ApprovedSubcategory: Metal Roofing
Change Log effective March 1st 2023
Approval & Installation Documents
PR INSTL DOCS FL46115 R4 II NS100A DWG
View
Download
PR INSTL DOCS FL46115 R4 II NS100AOSB DWG
View
Download
PR TECH DOCS FL46115 R4 AE NS100A EVAL
View
Download
PR TECH DOCS FL46115 R4 AE NS100AOSB EVAL
View
Download
Please log in & make sure your email is verified before viewing & downloading documents.
Thanks! You can now access your file with the button below.
You may also access all other files without any more popups.
Access File
A free account unlocks:
Access additional search features
Save & share searches
Search all databases at the same time
Monitor new listings
Track listing updates
Access download history
Create projects & organize approvals
Stay up to date with new features & industry news
A free account unlocks:
Save & share searches
Access additional search features
Search all databases at the same time
Monitor new listings Learn More
Track listing updates Learn More
Access download history
Create projects & organize approvals
Stay up to date with new features & industry news
Add Listing to Collection(s):
Added to favorites
Please create an account to use this feature