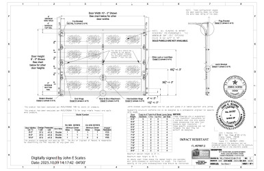
FL27667
Most Recent Revision
FL27667-R5
Revision Folder
Manufacturer
Report Status
Approved
Code
2023 Florida Building Code
Validator
Kurt Dietrich PE
Approvals in this folder:
Revision History
FL27667-R4
Revision Folder
FL27667-R3
Revision Folder
FL27667-R2
Revision Folder
FL27667-R1
Revision Folder
FL27667-R0
Revision Folder
Manufacturer Info
Haas Door Company is a renowned manufacturer of high-quality commercial, industrial, and residential overhead doors, fire doors, and rolling steel doors. Since its founding in 1947, the company has maintained a strong focus on innovation, customization, and exceptional service, establishing itself as a trusted partner for architects, contractors, and homeowners seeking durable, functional, and aesthetically pleasing door solutions. View all listings
* This manufacturer has not claimed their profile. Any logo or description displayed above has been generated by AI.
Folder QR Code
Shopping Cart
