FL29202.1-R2

Report Status
Approved
Code Version
2023 Florida Building Code
Application Type
Affirmation
Folio:
Model:

1600 Wall System 1 Curtain Wall

Manufacturer:
Database:
Florida Product Approval
Source Link:
Description:

1600 Wall System 1 Curtain Wall - LMI

Listing Details
Category:
Storefront Curtainwall & Cladding
Subcategory:
Curtain Walls
Evaluator:
  -  
Validator:
Scott Wolters, PE
Official Site Status:
Approved
Compliance Method:
Test Report
Approval Method:
Method 1 Option B
Entity:
 
Specifications
Submission Date:
July 20, 2023
Validation Date:
July 20, 2023
HVHZ Approved:
Yes
Impact Resistant:
Yes [FL]
Possible CSI Codes:
CSI Code: 08 44 26 - Structural Glass Curtain Walls
CSI Code: 11 61 33.19 - Curtain Systems
CSI Code: 08 01 44 - Operation and Maintenance of Curtain Walls
CSI Code: 08 44 26.13 - Glass Framed Point Supported Glass Curtain Walls
CSI Code: 08 44 00 - Curtain Wall and Glazed Assemblies
Other:
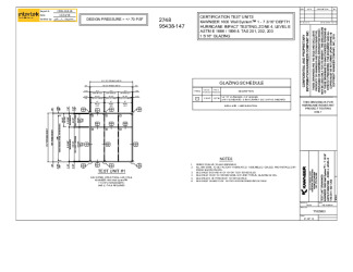
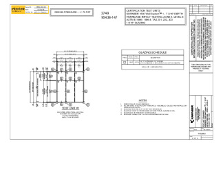
Zone 4, Level E, LMI. Curtain wall size, pressure, assembly and installation per the attached test report and test unit drawings. Project wind pressures shall be calculated per the Florida Building Code Chapter 16 and ASCE 7. Glass meets the requirements of ASTM E1300 standard.
Notes:


Date Submitted: July 20, 2023

Date Validated: July 20, 2023

Entity:  

Compliance Method: Test Report

Other: Zone 4, Level E, LMI. Curtain wall size, pressure, assembly and installation per the attached test report and test unit drawings. Project wind pressures shall be calculated per the Florida Building Code Chapter 16 and ASCE 7. Glass meets the requirements of ASTM E1300 standard.

Official Site Status: Approved

Subcategory: Curtain Walls
Contact Information
Representative:
Khanh Bui
Address:
555 Guthridge Court,
Norcross, Georgia 30092 USA
Search the National Fenestration Rating Council
(NFRC) for Energy Efficiency information

Read, ask experts, & comment on this topic. All for free.

Latest Posts From This Product Category

Ask The Circle
Listing Changes
Last Synced: 10/17/2025
Change Log effective March 1st 2023
Please sign in or create an account to view listing changes
Approval & Installation Documents
PR INSTL DOCS FL29202 R2 II 2747B
PR INSTL DOCS FL29202 R2 II 2747B
PR INSTL DOCS FL29202 R2 II 2748B
PR INSTL DOCS FL29202 R2 II 2748B
PR INSTL DOCS FL29202 R2 II 2749B
PR INSTL DOCS FL29202 R2 II 2749B
PR TECH DOCS FL29202 R2 TR 2747A
PR TECH DOCS FL29202 R2 TR 2747A
PR TECH DOCS FL29202 R2 TR 2748A
PR TECH DOCS FL29202 R2 TR 2748A
PR TECH DOCS FL29202 R2 TR 2749A
PR TECH DOCS FL29202 R2 TR 2749A
QR Code To This Listing
FL29202.1-R2 Listing QR Code
Shopping Cart