Best Fence & Gate Designs Recommended By Engineers

What Do Engineers Say About Fence & Gate Designs?

This article explores fence & gate design best practices as used by engineers.

Fence & Gate Design Considerations

Engineers think differently than the average fence builder.  And sometimes that’s a good thing, because the proper design of fences saves lives, decreases property damage during storms, and provides security & privacy needed in demanding conditions.

This article explores some of the many design elements of fences & gates as considered by engineers.

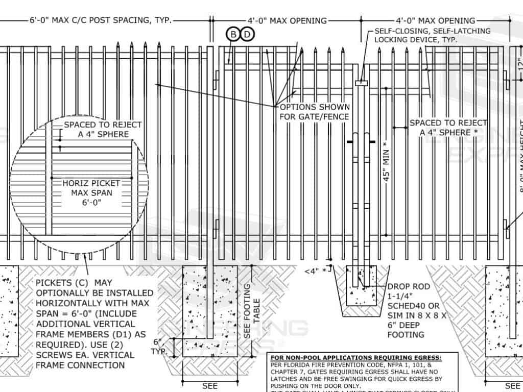
fence and gate plan design illustration
Engineering Plan For A Custom Fence - Click to see more

Do More

Browse Fence & Gate designs. Purchase engineer-certified originals for permit.

Porosity vs. Privacy

fence to a doorFence porosity refers to the ability of a fence to allow air, water, or other materials to pass through it. Porosity can be an important consideration when designing a fence, as it can affect the fence’s functionality and overall performance.

Fence porosity can be influenced by the type of material used, the size and spacing of openings in the fence, and the overall design of the fence. For example, a chain-link fence will have a high porosity due to its large openings, while a solid wood fence will have a low porosity with no openings.

In some cases, a high porosity fence can be desirable, such as in a windy area where a porous fence would allow wind to pass through it and reduce wind load on the fence. In other cases, a low porosity fence may be desirable, such as for privacy or security.

Porosity can also be affected by the distance between the fence posts, if the fence is made of mesh or chain links, the size and shape of the mesh or chain links.

The porosity of a fence can also affect how well the fence functions as a barrier to sound, light, and heat. A high porosity fence may not be as effective at blocking sound, light, or heat as a low porosity fence.

In summary, Fence porosity as explained by an engineer refers to the ability of a fence to allow air, water, or other materials to pass through it and it can be influenced by the type of material used, the size and spacing of openings in the fence, and the overall design of the fence. It can affect the fence’s functionality and overall performance and can be desirable or not depending on the specific application of the fence.

Gate Design Considerations

Designing a gate for a fence involves considering several aspects, such as:

  1. gate with white wall

    Functionality: The gate should be designed to perform the function for which it is intended. For example, a gate for a pool fence should be self-closing and self-latching to prevent accidental access to the pool area. A gate for a security fence should be designed to be durable and secure.

  2. Size: The gate should be designed to be the appropriate size for the intended use. A gate for a driveway should be wide enough to accommodate vehicles, while a gate for a pedestrian walkway should be narrow enough to prevent unauthorized access.

  3. Material: The gate should be constructed of materials that are suitable for the intended use and the location. For example, a gate for a pool fence should be made of materials that are resistant to corrosion and UV damage, while a gate for a security fence should be made of sturdy materials such as steel or wrought iron.

  4. Aesthetics: The gate should be designed to complement the overall design and style of the fence and the surrounding area. The color and style of the gate should match the fence and the property.

  5. Hardware: The gate should be equipped with appropriate hardware, such as hinges, latches, and locks, to ensure that it is easy to operate and secure.

  6. Swing direction: The gate should be designed to open in the direction of egress, meaning that it should open away from the pool or other hazardous area, to prevent people from accidentally entering these areas.

  7. Accessibility: Consider if the gate needs to be designed to accommodate wheelchairs and strollers, and if it should have automatic or remote-controlled opening mechanisms.

  8. Durability: The gate should be designed to withstand the elements and regular use, and to be durable enough to last for a long time.

By considering these design aspects, a gate can be designed to be functional, secure, and aesthetically pleasing while also meeting the specific requirements of the intended use and location.

Click here to read more from our friends at Hoover Fence about gates. 

Is This a Fence or Railing?

A fence is a barrier that is typically used to enclose an area or define a boundary. It is typically made of wood, vinyl, metal, or other durable materials and is designed to provide privacy and security. Fences can be used for a variety of purposes, such as to keep animals or people in or out of a specific area.

A railing, on the other hand, is a structure that is used to provide support and stability, typically on a staircase or balcony. Railings are typically made of metal, wood, or glass, and are designed to prevent falls and provide stability. They are also often used for decorative purposes. The key difference between a fence and railing is that a fence is used to enclose an area, while a railing is used to provide support and stability. Railings are typically required by code if the difference in elevation between sides is 30 inches or more.

One note about fences over water. While the drop in elevation could be over 30 inches, special codes permit variations in the design of posts & pickets.

Check with local & state codes for specific requirements for railings & fences in your area or contact a design professional to assist with your project.

Do More

Browse Fence & Gate designs. Purchase engineer-certified originals for permit.

Special Fence Considerations

Fences Around Pools

It is important to have a fence around a pool for several reasons, including safety, privacy, and security.

Fence of the resort pool reflected on the water. Pure blue sky on the background. glass rail pool

Firstly, a fence around a pool can help to prevent children and animals from accidentally falling into the pool. A fence can act as a barrier that keeps children and animals away from the pool and help to prevent drowning accidents.

Secondly, a fence can help to provide privacy and security. It can block the view of the pool from the street or from neighbors, and prevent unauthorized access to the pool area.

Lastly, having a fence around the pool can help to keep debris out of the pool, such as leaves and branches, which can help to reduce the need for cleaning and maintenance.

In summary, a fence around a pool can help to keep children and animals safe, provide privacy and security, and help to keep debris out of the pool.

Fence Egress Requirements

Egress refers to the ability for people to safely enter and exit a building or property. When installing a fence, there are several considerations for egress that should be taken into account:

  1. Access Points: The fence should have clearly marked and easily accessible entry and exit points, such as gates, to allow people to enter and exit the property. These gates should be wide enough to accommodate wheelchairs and strollers.

  2. Height: The fence should be of appropriate height to provide security, but not be so high that it obstructs visibility or makes it difficult for people to enter and exit. Local building codes may have specific requirements for the height of fences.

  3. Swing direction: The gates should open in the direction of egress. This means that gates that open towards the pool or other hazardous area should be avoided to prevent people from accidentally entering these areas.

  4. Latch and Lock: The gates should have a self-closing and self-latching mechanism to prevent them from being accidentally left open. The gates should also have a lock to prevent unauthorized access.

  5. Emergency egress: In case of emergency, such as fire, the fence should have an emergency egress point, such as a gate or breakaway section, to allow people to quickly and safely exit the property.

  6. Visibility: The fence should not obstruct visibility of the pool from the house or other parts of the property. This can help in supervising children and others in the pool area.

By considering these factors, a fence can be installed in a way that provides security and privacy while also allowing for safe egress.

Rooftop Fences

rooftop canopies aluminum rail deck pool stairs gazeboRooftop fences, also known as rooftop guardrails, are a unique type of fence that are designed to provide safety and security on flat roofs or rooftop terraces. Some of the factors that make rooftop fences unique include:

  1. Load-bearing capabilities: Rooftop fences must be able to withstand the weight of people and potential impact from falls, so they are typically made from durable materials such as steel or aluminum.

  2. Weather resistance: Rooftop fences are exposed to the elements, including wind, rain, and sun, so they must be able to withstand these conditions without rusting, corroding or deteriorating.

  3. Height considerations: Rooftop fences are typically higher than ground-level fences, so they must be designed to meet local building codes and safety regulations for fall protection.

  4. Anchoring: Rooftop fences need to be anchored securely to the rooftop to prevent them from falling or moving in high winds.

  5. Building codes: In addition to safety and weather considerations, rooftop fences must also comply with local building codes and zoning regulations.

  6. Aesthetics: Rooftop fences can be designed to complement the look of the building and blend seamlessly into the rooftop environment.

  7. Accessibility: Rooftop fences should also have proper access points such as gates for the maintenance workers and emergency services.

Overall, rooftop fences are unique in that they must be able to withstand the specific conditions and demands of the rooftop environment while also meeting safety and building code requirements.

Fence On My Property Line

When installing a fence on your property liHouse and fence grass woodne, there are several considerations you should take into account:

  1. Property line location: It is important to accurately locate your property line before installing a fence to ensure that the fence is built on your property and not on your neighbor’s property. You can use a survey or consult your local land records office to determine the exact location of your property line.

     

  2. Zoning regulations: Check with your local zoning department to determine if there are any regulations regarding the type, height, or location of the fence on your property. Some municipalities may have specific regulations regarding fences, such as maximum height or setback requirements.

  3. Building codes: Check with your local building department to ensure that the fence you want to install meets all necessary building codes and safety standards.

  4. Neighbor’s agreement: Before installing a fence on the property line, it is recommended to have a good communication and agreement with your neighbor, especially if you are planning to share the cost of the fence.

  5. Maintenance: Consider who will be responsible for the maintenance of the fence, including repairs and painting, and make sure to have it written in a contract or agreement.

  6. Aesthetics: Consider the appearance of the fence and how it will look from both sides, and try to match the style and color of the fence with the surrounding neighborhood.

  7. Property line markers: Consider installing property line markers, such as small flags or paint, to clearly mark the boundary between your property and your neighbor’s property.

By considering these factors, you can ensure that your fence is installed correctly, safely, and in compliance with local regulations and in a way that is respectful to your neighbors.

Unique Fence Code Requirements

Fences in Florida

fence yard waterThe Florida Building Code (FBC) has specific requirements for fence design that must be followed in the state of Florida. These requirements may vary depending on the specific location and the type of fence being installed. However, some general requirements for fence design in Florida include:

  1. Height: The maximum height of a fence in a residential area is typically six feet, but this can vary depending on the zoning district and location of the property.

  2. Materials: The FBC specifies that fences must be constructed of approved materials, such as wood, vinyl, metal or masonry. The materials used should be appropriate for the intended use and location of the fence.

  3. Wind-Resistance: The FBC requires that fences must be able to withstand the wind loads specified in the building code. This may require additional design and engineering for the fence to meet the wind load criteria.

  4. Setbacks: The FBC specifies the minimum setbacks required for fences on a property. These setbacks vary depending on the zoning district and location of the property, but they are typically measured from the property line, street, or other structures on the property.

  5. Pool Fences: The FBC has specific requirements for pool fences, including height, accessibility, and self-closing and self-latching gates.

  6. Building permits: Building permits are usually required for installing fences in Florida, and the permit application must include details of the proposed fence design, including materials, height, and location.

It is important to check with your local building department for specific requirements for fence design in your area, and consult with professional for any design and construction of a fence.

Do More

Browse Fence & Gate designs. Purchase engineer-certified originals for permit.

Are You Ready To Plan?

Sign Up For
Our Newsletter

Search For Your Perfect
Engineering Plan

Shopping Cart